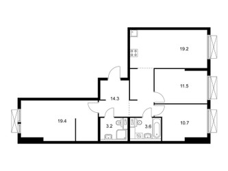
3-Комнатная квартира, 81.9 м², ID 219850
Обновлено 3 недели назад

31 536 000 ₽
385 055 ₽ / м2
- Срок сдачи
- II квартал 2025
- Застройщик
- нет данных
- Общая площадь
- 81.9 м2
- Жилая площадь
- 41.6 м2
- Площадь кухни
- 19.2 м2
- Высота потолков
- 2.68 м
- Этаж
- 16 из 33
- Корпус
- 2.2
- Отделка
- Чистовая
- Санузел
- Раздельный
- ID
- 219850
Расположение
Описание
Трехкомнатная квартира, 81.9 м2 в ЖК Кольская 8 от
Продается трехкомнатная квартира в новостройке ЖК Кольская 8 за 31 536 000 рублей, находящаяся по адресу Москва, Северо-Восточный (СВАО), Бабушкинский, ул Кольская, д 8 к 2. Компания застройщик «ПИК». Квартира сдается в II квартале 2025 года с чистовой отделкой, в 11 минутах пешком от станции метрополитена Свиблово. Общая площадь квартиры - 81.9 м². Этаж 16 из 23. ID квартиры на СтройкиРУ 219850, назовите его когда будете звонить.
Подробнее о ЖК Кольская 8
Особенности
Ход строительства
Документация
- Проектная декларация № 77-002527, корпус 2.2 02.06.2023821.34 кб, pdf
- Проект договора участия в долевом строительстве, корпус 2.2 09.01.2023170.63 кб, pdf
- Экспертиза проектной документации, корпус 2.2 15.08.202223.57 мб, pdf
- Извещение о начале строительства, корпус 2.2 30.06.20225.55 мб, pdf
- Разрешение на строительство 77-106000-020230-2022, корпус 2.2 24.05.20222.97 мб, pdf
- Градостроительный план земельного участка, корпус 2.2 16.05.20221.81 мб, pdf
- Схема планировочной организации земельного участка, корпус 2.2 16.05.20225.22 мб, pdf
- Проектная декларация № 77-002527, корпус 2.1 02.06.2023821.34 кб, pdf
- Проект договора участия в долевом строительстве, корпус 2.1 09.01.2023170.63 кб, pdf
- Экспертиза проектной документации, корпус 2.1 15.08.202223.57 мб, pdf
- Извещение о начале строительства, корпус 2.1 30.06.20225.55 мб, pdf
- Разрешение на строительство 77-106000-020230-2022, корпус 2.1 24.05.20222.97 мб, pdf
- Градостроительный план земельного участка, корпус 2.1 16.05.20221.81 мб, pdf
- Схема планировочной организации земельного участка, корпус 2.1 16.05.20225.22 мб, pdf
- Проектная декларация № 77-002527, корпус 2.4 02.06.2023821.34 кб, pdf
- Проект договора участия в долевом строительстве, корпус 2.4 09.01.2023170.63 кб, pdf
- Экспертиза проектной документации, корпус 2.4 15.08.202223.57 мб, pdf
- Извещение о начале строительства, корпус 2.4 30.06.20225.55 мб, pdf
- Разрешение на строительство 77-106000-020230-2022, корпус 2.4 24.05.20222.97 мб, pdf
- Схема планировочной организации земельного участка, корпус 2.4 16.05.20225.22 мб, pdf
- Градостроительный план земельного участка, корпус 2.4 16.05.20221.81 мб, pdf
- Разрешение на ввод 77-02-011368-2023, корпус 1 11.04.2023168.16 кб, pdf
- Проектная декларация № 77-002198, корпус 1 04.04.2023690.61 кб, pdf
- Экспертиза проектной документации, корпус 1 04.02.2023611.27 кб, pdf
- Проект договора участия в долевом строительстве, корпус 1 09.01.2023170.63 кб, pdf
- Схема планировочной организации земельного участка, корпус 1 22.12.20226.91 мб, pdf
- Информация о выданных заключениях о соответствии застройщика и проектной декларации требованиям 214-ФЗ 77-002198 ЗОС/186/77-002198, корпус 1 01.04.2021696.79 кб, pdf
- Извещение о начале строительства, корпус 1 01.04.2021220.59 кб, pdf
- Градостроительный план земельного участка, корпус 1 05.03.20211.99 мб, pdf
- Разрешение на строительство 77-106000-019427-2021, корпус 1 05.03.20212.11 мб, pdf



























