Квартиры чистовой отделкой в Москве и МО
1-комн. квартира • 34.63 м2
ЖК Квартал Сабурово IV квартал 2028
5 698 158 ₽164 544 ₽ / м29/9 этаж11 корпусЧистоваяПродается 1-комн. квартира в новостройке ЖК Квартал Сабурово стоимостью 5 698 158 ₽, по адресу Химки, ул Сабуровская. Строится компанией Группа "Самолет". Квартира сдается в 4 квартале 2024 года с чистовой отделкой, в 21 минуте на машине от станции метро Пятницкое шоссе. Общая площадь квартиры - 34.63 кв. м. Этаж 9 из 9. ID квартиры на СтройкиРУ 195452, скажите его когда будете звонить.
сегодня Показать телефон1-комн. квартира • 32.87 м2
ЖК Квартал Сабурово IV квартал 2028
5 219 065 ₽158 779 ₽ / м22/9 этаж11 корпусЧистоваяПродается однокомнатная квартира в новостройке ЖК Квартал Сабурово за 5 219 065 рублей, находящаяся по адресу Химки, ул Сабуровская. Компания застройщик Группа "Самолет". Квартира сдается в IV квартале 2024 года с чистовой отделкой, в 21 минуте на машине от станции метрополитена Пятницкое шоссе. Общая площадь квартиры - 32.87 м². Этаж 2 из 9. ID квартиры на СтройкиРУ 195467, назовите его когда будете звонить.
сегодня Показать телефон1-комн. квартира • 34.9 м2
Жилые кварталы Белый Град III квартал 2026
9 070 000 ₽259 885 ₽ / м25/23 этаж12.3 корпусЧистоваяПродается однокомнатная квартира в новостройке ЖК Белый Grad (Белый Град) за 9 070 000 р, находящаяся по адресу Мытищи, деревня Челобитьево, Осташковское шоссе. Застройщик дома Ingrad. Квартира сдается в III квартале 2026 года с чистовой отделкой, в 26 минутах на машине от станции метрополитена Медведково. Общая площадь квартиры - 34.9 м². Этаж 5 из 23. ID квартиры на СтройкиРУ 523543, назовите его когда будете звонить.
сегодня Показать телефонСтудия квартира • 31.3 м2
ЖК Саларьево парк III квартал 2028
10 999 000 ₽351 406 ₽ / м24/25 этаж69 корпусЧистоваяПродается квартира-студия в новостройке ЖК Саларьево парк стоимостью 10 999 000 р, по адресу Москва, Новомосковский (НАО), Московский, ул Саларьевская. Застройщик дома «ПИК». Квартира сдается в III квартале 2028 года с чистовой отделкой, в 10 минутах пешком от станции метро Саларьево. Общая площадь квартиры - 31.3 м². Этаж 4. ID квартиры на СтройкиРУ 598211, скажите его когда будете звонить.
3 дня назад Показать телефон2-комн. квартира • 65.8 м2
ЖК Датский Квартал Сдан
17 437 000 ₽265 000 ₽ / м23/22 этаж2 корпусЧистоваяПродается двухкомнатная квартира в новостройке ЖК Датский Квартал за 17 437 000 рублей, находящаяся по адресу Мытищи, поселок Нагорное, д 2. Компания застройщик ФСК. Квартира сдается в IV квартале 2023 года с чистовой отделкой, в 11 минутах на машине от станции метрополитена Бибирево. Общая площадь квартиры - 65.8 м². Этаж 3 из 22. ID квартиры на СтройкиРУ 93856, назовите его когда будете звонить.
сегодня Показать телефон1-комн. квартира • 37.1 м2
ЖК Космический Квартал IV квартал 2026
8 042 457 ₽216 778 ₽ / м24/17 этаж1.1 корпусЧистоваяПродается однокомнатная квартира в новостройке ЖК Космический Квартал за 8 042 457 рублей, находящаяся по адресу Королёв, мкр Юбилейный, ул М.К.Тихонравова. Компания застройщик Группа "Самолет". Квартира сдается в IV квартале 2026 года с чистовой отделкой, в 22 минутах на машине от станции метрополитена Медведково. Общая площадь квартиры - 37.1 м². Этаж 4 из 17. ID квартиры на СтройкиРУ 599363, назовите его когда будете звонить.
вчера Показать телефон2-комн. квартира • 49.9 м2
ЖК Видный берег 2 II квартал 2027
9 774 296 ₽195 878 ₽ / м223/25 этаж1.6 корпусЧистоваяПродается двухкомнатная квартира в новостройке ЖК Видный берег 2 по цене 9 774 296 рублей, расположенная по адресу Видное, мкр Купелинка (деревня Сапроново), кв-л Северный, д 1. Компания застройщик Тройка РЭД. Квартира сдается в II квартале 2027 года с чистовой отделкой, в 45 минутах на машине от метро Домодедовская. Общая площадь квартиры - 49.9 м². Этаж 23 из 23. ID квартиры на СтройкиРУ 469660, сообщите его когда будете звонить.
сегодня Показать телефон2-комн. квартира • 57.2 м2
ЖК Wave (Вейв) IV квартал 2026
24 510 943 ₽428 513 ₽ / м210/52 этаж6 корпусЧистоваяПродается двухкомнатная квартира в новостройке ЖК Wave (Вейв) за 24 510 943 р, находящаяся по адресу Москва, Южный (ЮАО), Москворечье-Сабурово, ул Борисовские Пруды, д 1. Застройщик дома ЛСР. Квартира сдается в IV квартале 2026 года с чистовой отделкой, в 4 минутах на машине от станции метрополитена Борисово. Общая площадь квартиры - 57.2 м². Этаж 10 из 30. ID квартиры на СтройкиРУ 350327, назовите его когда будете звонить.
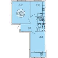
вчера Показать телефон2-комн. квартира • 73 м2
Жилые кварталы Белый Град III квартал 2026
15 340 000 ₽210 137 ₽ / м24/23 этаж12.1 корпусЧистоваяПродается 2-комн. квартира в новостройке ЖК Белый Grad (Белый Град) по цене 15 340 000 ₽, расположенная по адресу Мытищи, деревня Челобитьево, Осташковское шоссе. Строится компанией Ingrad. Квартира сдается в 3 квартале 2026 года с чистовой отделкой, в 26 минутах на машине от метро Медведково. Общая площадь квартиры - 73 кв. м. Этаж 4 из 20. ID квартиры на СтройкиРУ 387484, сообщите его когда будете звонить.
сегодня Показать телефон1-комн. квартира • 36.6 м2
ЖК Видный берег 2 II квартал 2026
7 631 541 ₽208 512 ₽ / м211/25 этаж1.7 корпусЧистоваяПродается 1-комн. квартира в новостройке ЖК Видный берег 2 по цене 7 631 541 руб, расположенная по адресу Видное, мкр Купелинка (деревня Сапроново), кв-л Северный, д 1. Застройщик Тройка РЭД. Квартира сдается в 2 квартале 2026 года с чистовой отделкой, в 45 минутах на машине от метро Домодедовская. Общая площадь квартиры - 36.6 кв. м. Этаж 11 из 20. ID квартиры на СтройкиРУ 497571, сообщите его когда будете звонить.
сегодня Показать телефон2-комн. квартира • 59.3 м2
10 998 660 ₽185 475 ₽ / м26/15 этаж1 корпусЧистоваяПродается 2-комн. квартира в новостройке ЖК Движение. Говорово по цене 10 998 660 ₽, расположенная по адресу Москва, Новомосковский (НАО), Московский, деревня Говорово, д 1 стр 1. Строится компанией ФСК. Квартира сдается в 2 квартале 2025 года с чистовой отделкой, в 27 минутах пешком от метро Говорово. Общая площадь квартиры - 59.3 кв. м. Этаж 6 из 15. ID квартиры на СтройкиРУ 356143, сообщите его когда будете звонить.
сегодня Показать телефон3-комн. квартира • 80.3 м2
ЖК Первый Московский I квартал 2027
21 060 419 ₽262 272 ₽ / м213/25 этаж3 (7 фаза) корпусЧистоваяПродается трехкомнатная квартира в новостройке ЖК Первый Московский стоимостью 21 060 419 рублей, по адресу Москва, Северо-Западный (СЗАО), Московский, Боровское шоссе 1-й км. Компания застройщик Абсолют. Квартира сдается в I квартале 2027 года с чистовой отделкой, в 5 минутах на машине от станции метро Филатов Луг. Общая площадь квартиры - 80.3 м². Этаж 13 из 20. ID квартиры на СтройкиРУ 584425, скажите его когда будете звонить.
вчера Показать телефон2-комн. квартира • 57.6 м2
ЖК Переделкино Ближнее III квартал 2028
19 054 866 ₽330 814 ₽ / м211/25 этаж1 (13 фаза) корпусЧистоваяПродается 2-комн. квартира в новостройке ЖК Переделкино Ближнее за 19 054 866 ₽, находящаяся по адресу Москва, Новомосковский (НАО), Внуковское, поселение Внуковское, ул Корнея Чуковского. Строится компанией Абсолют. Квартира сдается в 3 квартале 2028 года с чистовой отделкой, в 7 минутах пешком от станции метрополитена Рассказовка. Общая площадь квартиры - 57.6 кв. м. Этаж 11 из 17. ID квартиры на СтройкиРУ 583649, назовите его когда будете звонить.
вчера Показать телефонСтудия квартира • 25.9 м2
Жилые кварталы Белый Град III квартал 2026
7 200 000 ₽277 992 ₽ / м29/23 этаж12.2 корпусЧистоваяПродается квартира-студия в новостройке ЖК Белый Grad (Белый Град) стоимостью 7 200 000 рублей, по адресу Мытищи, деревня Челобитьево, Осташковское шоссе. Компания застройщик Ingrad. Квартира сдается в III квартале 2026 года с чистовой отделкой, в 26 минутах на машине от станции метро Медведково. Общая площадь квартиры - 25.9 м². Этаж 9 из 23. ID квартиры на СтройкиРУ 336281, скажите его когда будете звонить.
сегодня Показать телефонСтудия квартира • 23.9 м2
ЖК Видный берег 2 II квартал 2026
6 253 523 ₽261 654 ₽ / м218/25 этаж1.8 корпусЧистоваяПродается квартира-студия в новостройке ЖК Видный берег 2 за 6 253 523 рублей, находящаяся по адресу Видное, мкр Купелинка (деревня Сапроново), кв-л Северный, д 1. Компания застройщик Тройка РЭД. Квартира сдается в II квартале 2026 года с чистовой отделкой, в 45 минутах на машине от станции метрополитена Домодедовская. Общая площадь квартиры - 23.9 м². Этаж 18 из 25. ID квартиры на СтройкиРУ 507643, назовите его когда будете звонить.
сегодня Показать телефон2-комн. квартира • 56.86 м2
ЖК Светлый мир Станция Л II квартал 2026
15 829 824 ₽278 400 ₽ / м216/24 этаж27 корпусЧистоваяПродается двухкомнатная квартира в новостройке ЖК Светлый мир Станция Л за 15 829 824 рублей, находящаяся по адресу Москва, Юго-Восточный (ЮВАО), Люблино, ул Люблинская, влд 72 к 3. Компания застройщик Seven Suns Development. Квартира сдается в III квартале 2025 года с чистовой отделкой, в 12 минутах пешком от станции метрополитена Братиславская. Общая площадь квартиры - 56.86 м². Этаж 16 из 25. ID квартиры на СтройкиРУ 437540, назовите его когда будете звонить.
сегодня Показать телефонСтудия квартира • 22.3 м2
ЖК Новая Щербинка III квартал 2026
8 822 284 ₽395 618 ₽ / м21/8 этаж17 корпусЧистоваяПродается квартира-студия в новостройке ЖК Новая Щербинка по цене 8 822 284 руб, расположенная по адресу Подольск, ул Рахманинова. Застройщик ООО Квартал-Инвестстрой. Квартира сдается в 3 квартале 2026 года с чистовой отделкой, в 59 минутах на машине от метро Аннино. Общая площадь квартиры - 22.3 кв. м. Этаж 1 из 8. ID квартиры на СтройкиРУ 454084, сообщите его когда будете звонить.
вчера Показать телефон2-комн. квартира • 42.8 м2
Новые Ватутинки. Заречный IV квартал 2026
13 534 700 ₽316 231 ₽ / м27/15 этаж6/1 корпусЧистоваяПродается двухкомнатная квартира в новостройке Новые Ватутинки. Заречный стоимостью 13 534 700 р, по адресу Москва, Новомосковский (НАО), Десёновское, ул 3-я Нововатутинская, д 13Б. Застройщик дома ГК "Стройком". Квартира сдается в IV квартале 2026 года с чистовой отделкой, в 17 минутах на машине от станции метро Аэропорт Внуково. Общая площадь квартиры - 42.8 м². Этаж 7. ID квартиры на СтройкиРУ 593825, скажите его когда будете звонить.
вчера Показать телефон1-комн. квартира • 38.5 м2
9 896 040 ₽257 040 ₽ / м221/25 этаж4.1 корпусЧистоваяПродается 1-комн. квартира в новостройке ЖК Первый Лермонтовский за 9 896 040 ₽, находящаяся по адресу Люберцы, Проектируемый проезд, д 4037. Строится компанией ФСК. Квартира сдается в 4 квартале 2023 года с чистовой отделкой, в 15 минутах на машине от станции метрополитена Жулебино. Общая площадь квартиры - 38.5 кв. м. Этаж 21 из 24. ID квартиры на СтройкиРУ 99695, назовите его когда будете звонить.
сегодня Показать телефонСтудия квартира • 25.2 м2
ЖК Полар II квартал 2027
10 551 240 ₽418 700 ₽ / м225/50 этаж1.4 корпусЧистоваяПродается квартира-студия в новостройке ЖК Полар по цене 10 551 240 рублей, расположенная по адресу Москва, Северо-Восточный (СВАО), Северное Медведково, ул Полярная, д 39. Компания застройщик «ПИК». Квартира сдается в II квартале 2027 года с чистовой отделкой, в 17 минутах пешком от метро Медведково. Общая площадь квартиры - 25.2 м². Этаж 25 из 53. ID квартиры на СтройкиРУ 616989, сообщите его когда будете звонить.
вчера Показать телефон1-комн. квартира • 36.7 м2
ЖК Римский Сдан
11 501 910 ₽313 404 ₽ / м21/18 этаж8 корпусЧистоваяПродается однокомнатная квартира в новостройке ЖК UP-квартал Римский за 11 501 910 р, находящаяся по адресу Видное, поселок Развилка, Римский пр-д, д 5 стр 1. Застройщик дома ФСК. Квартира сдается в I квартале 2024 года с чистовой отделкой, в 17 минутах на машине от станции метрополитена Зябликово. Общая площадь квартиры - 36.7 м². Этаж 1 из 16. ID квартиры на СтройкиРУ 96934, назовите его когда будете звонить.
сегодня Показать телефонСтудия квартира • 24.7 м2
Жилые кварталы Белый Град III квартал 2026
6 740 000 ₽272 874 ₽ / м22/23 этаж12.1 корпусЧистоваяПродается квартира-студия в новостройке ЖК Белый Grad (Белый Град) за 6 740 000 ₽, находящаяся по адресу Мытищи, деревня Челобитьево, Осташковское шоссе. Строится компанией Ingrad. Квартира сдается в 3 квартале 2026 года с чистовой отделкой, в 26 минутах на машине от станции метрополитена Медведково. Общая площадь квартиры - 24.7 кв. м. Этаж 2 из 20. ID квартиры на СтройкиРУ 528394, назовите его когда будете звонить.
сегодня Показать телефон2-комн. квартира • 52.6 м2
ЖК Амурский парк I квартал 2029
16 960 000 ₽322 433 ₽ / м215/33 этаж4.1-4.5 корпусЧистоваяПродается 2-комн. квартира в новостройке ЖК Амурский парк стоимостью 16 960 000 ₽, по адресу Москва, Восточный (ВАО), Гольяново, ул Амурская, д 2А к 1. Строится компанией «ПИК». Квартира сдается в 1 квартале 2029 года с чистовой отделкой, в 8 минутах пешком от станции метро Черкизовская. Общая площадь квартиры - 52.6 кв. м. Этаж 15 из 27. ID квартиры на СтройкиРУ 585421, скажите его когда будете звонить.
4 дня назад Показать телефон2-комн. квартира • 57.32 м2
ЖК Квартал Сабурово IV квартал 2028
8 206 021 ₽143 162 ₽ / м22/9 этаж11 корпусЧистоваяПродается двухкомнатная квартира в новостройке ЖК Квартал Сабурово стоимостью 8 206 021 рублей, по адресу Химки, ул Сабуровская. Компания застройщик Группа "Самолет". Квартира сдается в IV квартале 2024 года с чистовой отделкой, в 21 минуте на машине от станции метро Пятницкое шоссе. Общая площадь квартиры - 57.32 м². Этаж 2 из 9. ID квартиры на СтройкиРУ 195506, скажите его когда будете звонить.
сегодня Показать телефон4+ комн. квартира • 201 м2
ЖК Вишневый сад Сдан
261 261 000 ₽1 299 806 ₽ / м212/12 этажT,Y,P корпусЧистоваяПродается многокомнатная квартира в новостройке ЖК Вишневый сад по цене 261 261 000 р, расположенная по адресу Москва, Западный (ЗАО), Раменки, ул Мосфильмовская, д 1 стр 5. Застройщик дома AB Development. Квартира сдается в IV квартале 2024 года с чистовой отделкой, в 12 минутах на машине от метро Ломоносовский проспект. Общая площадь квартиры - 201 м². Этаж 12 из 14. ID квартиры на СтройкиРУ 192894, сообщите его когда будете звонить.
сегодня Показать телефон2-комн. квартира • 73 м2
Жилые кварталы Белый Град III квартал 2026
15 630 000 ₽214 110 ₽ / м213/23 этаж12.1 корпусЧистоваяПродается двухкомнатная квартира в новостройке ЖК Белый Grad (Белый Град) стоимостью 15 630 000 рублей, по адресу Мытищи, деревня Челобитьево, Осташковское шоссе. Компания застройщик Ingrad. Квартира сдается в III квартале 2026 года с чистовой отделкой, в 26 минутах на машине от станции метро Медведково. Общая площадь квартиры - 73 м². Этаж 13 из 20. ID квартиры на СтройкиРУ 514058, скажите его когда будете звонить.
сегодня Показать телефон2-комн. квартира • 52.3 м2
ЖК Полар II квартал 2027
19 774 630 ₽378 100 ₽ / м234/50 этаж1.4 корпусЧистоваяПродается 2-комн. квартира в новостройке ЖК Полар за 19 774 630 ₽, находящаяся по адресу Москва, Северо-Восточный (СВАО), Северное Медведково, ул Полярная, д 39. Строится компанией «ПИК». Квартира сдается в 2 квартале 2027 года с чистовой отделкой, в 17 минутах пешком от станции метрополитена Медведково. Общая площадь квартиры - 52.3 кв. м. Этаж 34 из 53. ID квартиры на СтройкиРУ 612407, назовите его когда будете звонить.
вчера Показать телефон1-комн. квартира • 35.4 м2
ЖК Видный берег 2 II квартал 2027
6 454 958 ₽182 343 ₽ / м23/25 этаж1.6 корпусЧистоваяПродается 1-комн. квартира в новостройке ЖК Видный берег 2 стоимостью 6 454 958 ₽, по адресу Видное, мкр Купелинка (деревня Сапроново), кв-л Северный, д 1. Строится компанией Тройка РЭД. Квартира сдается в 2 квартале 2027 года с чистовой отделкой, в 45 минутах на машине от станции метро Домодедовская. Общая площадь квартиры - 35.4 кв. м. Этаж 3 из 23. ID квартиры на СтройкиРУ 469631, скажите его когда будете звонить.
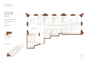
сегодня Показать телефон2-комн. квартира • 110.8 м2
ЖК Квартал Vesper Кутузовский (Веспер) I квартал 2028
149 048 160 ₽1 345 200 ₽ / м23/18 этаж9 корпусЧистоваяПродается 2-комн. квартира в новостройке ЖК Квартал Vesper Кутузовский (Веспер) по цене 149 048 160 руб, расположенная по адресу Москва, Западный (ЗАО), Дорогомилово, Кутузовский пр-кт, д 12. Застройщик Vesper. Квартира сдается в 1 квартале 2028 года с чистовой отделкой, в 15 минутах пешком от метро Киевская. Общая площадь квартиры - 110.8 кв. м. Этаж 3. ID квартиры на СтройкиРУ 606950, сообщите его когда будете звонить.
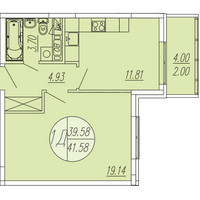
вчера Показать телефон1-комн. квартира • 47.96 м2
ЖК Квартал Авиаторов IV квартал 2026
7 615 185 ₽158 782 ₽ / м210/24 этаж4 корпусЧистоваяПродается 1-комн. квартира в новостройке ЖК Квартал Авиаторов стоимостью 7 615 185 руб, по адресу Балашиха, мкр Авиаторов, ул Колдунова. Застройщик Группа "Самолет". Квартира сдается в 4 квартале 2026 года с чистовой отделкой, в 20 минутах на машине от станции метро Щёлковская. Общая площадь квартиры - 47.96 кв. м. Этаж 10 из 24. ID квартиры на СтройкиРУ 436987, скажите его когда будете звонить.
сегодня Показать телефон







































































