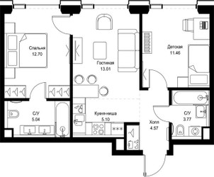
2-Комнатная квартира, 55.65 м², ID 687716
Обновлено Сегодня, 00:26
29 682 319 ₽
533 375 ₽ / м2
- ЖК
- ЖК СЕТ
- Срок сдачи
- III квартал 2028
- Застройщик
- нет данных
- Общая площадь
- 55.65 м2
- Жилая площадь
- 37.17 м2
- Площадь кухни
- 55.65 м2
- Этаж
- 43 из 59
- Отделка
- не указана
- ID
- 687716
Расположение
Описание
Двухкомнатная квартира, 55.65 м2 в ЖК СЕТ от
Продается двухкомнатная квартира в новостройке ЖК СЕТ за 29 682 319 рублей, находящаяся по адресу Москва, Западный (ЗАО), Можайский, ул Верейская, д 29 стр 32Б. Компания застройщик MR Group. Квартира сдается в III квартале 2028 года в 13 минутах на машине от станции метрополитена Давыдково. Общая площадь квартиры - 55.65 м². Этаж 43 из 59. ID квартиры на СтройкиРУ 687716, назовите его когда будете звонить.


















