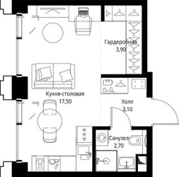
Квартира-студия, 27.4 м², ID 687349
Обновлено Сегодня, 00:23
Расположение
Описание
Студия квартира, 27.4 м2 в ЖК СЕТ от
Продается квартира-студия в новостройке ЖК СЕТ по цене 19 831 435 р, расположенная по адресу Москва, Западный (ЗАО), Можайский, ул Верейская, д 29 стр 32Б. Застройщик дома MR Group. Квартира сдается в III квартале 2028 года в 13 минутах на машине от метро Давыдково. Общая площадь квартиры - 27.4 м². Этаж 7 из 59. ID квартиры на СтройкиРУ 687349, сообщите его когда будете звонить.


















