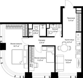
2-Комнатная квартира, 60.85 м², ID 742679
Обновлено Сегодня, 11:38
30 800 749 ₽
506 175 ₽ / м2
- ЖК
- ЖК Веер
- Срок сдачи
- III квартал 2028
- Застройщик
- нет данных
- Общая площадь
- 60.85 м2
- Жилая площадь
- 29.78 м2
- Площадь кухни
- 60.85 м2
- Этаж
- 45 из 59
- Отделка
- не указана
- ID
- 742679
Расположение
Описание
Двухкомнатная квартира, 60.85 м2 в ЖК Веер от
Продается 2-комн. квартира в новостройке ЖК Веер по цене 30 800 749 руб, расположенная по адресу Москва, Западный (ЗАО), Можайский, ул Верейская, д 29. Застройщик MR Group. Квартира сдается в 4 квартале 2029 года в 23 минутах пешком от метро Давыдково. Общая площадь квартиры - 60.85 кв. м. Этаж 45 из 59. ID квартиры на СтройкиРУ 742679, сообщите его когда будете звонить.





































