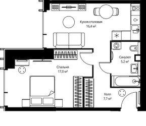
1-Комнатная квартира, 46.3 м², ID 742490
Обновлено Сегодня, 00:16
23 809 775 ₽
514 250 ₽ / м2
- ЖК
- ЖК Веер
- Срок сдачи
- III квартал 2028
- Застройщик
- нет данных
- Общая площадь
- 46.3 м2
- Жилая площадь
- 17 м2
- Площадь кухни
- 46.3 м2
- Этаж
- 3 из 59
- Отделка
- не указана
- ID
- 742490
Расположение
Описание
Однокомнатная квартира, 46.3 м2 в ЖК Веер от
Продается 1-комн. квартира в новостройке ЖК Веер по цене 23 809 775 ₽, расположенная по адресу Москва, Западный (ЗАО), Можайский, ул Верейская, д 29. Строится компанией MR Group. Квартира сдается в 3 квартале 2028 года в 23 минутах пешком от метро Давыдково. Общая площадь квартиры - 46.3 кв. м. Этаж 3 из 59. ID квартиры на СтройкиРУ 742490, сообщите его когда будете звонить.





































