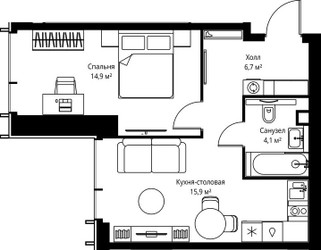
1-Комнатная квартира, 41.6 м², ID 742404
Обновлено Сегодня, 02:37
22 984 000 ₽
552 500 ₽ / м2
- ЖК
- ЖК Веер
- Срок сдачи
- III квартал 2028
- Застройщик
- нет данных
- Общая площадь
- 41.6 м2
- Жилая площадь
- 14.9 м2
- Площадь кухни
- 41.6 м2
- Этаж
- 3 из 59
- Отделка
- не указана
- ID
- 742404
Расположение
Описание
Однокомнатная квартира, 41.6 м2 в ЖК Веер от
Продается 1-комн. квартира в новостройке ЖК Веер за 22 984 000 ₽, находящаяся по адресу Москва, Западный (ЗАО), Можайский, ул Верейская, д 29. Строится компанией MR Group. Квартира сдается в 3 квартале 2028 года в 23 минутах пешком от станции метрополитена Давыдково. Общая площадь квартиры - 41.6 кв. м. Этаж 3 из 59. ID квартиры на СтройкиРУ 742404, назовите его когда будете звонить.





































