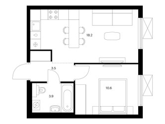
1-Комнатная квартира, 36.2 м², ID 652823
Обновлено Вчера, 00:39
15 323 460 ₽
423 300 ₽ / м2
- Срок сдачи
- III квартал 2026
- Застройщик
- нет данных
- Общая площадь
- 36.2 м2
- Высота потолков
- 2.62 м
- Этаж
- 7 из 18
- Корпус
- 4
- Отделка
- Чистовая
- Санузел
- Совмещенный
- ID
- 652823
Расположение
Описание
Однокомнатная квартира, 36.2 м2 в ЖК Никольские луга от
Продается 1-комн. квартира в новостройке ЖК Никольские луга за 15 323 460 ₽, находящаяся по адресу Москва, Юго-Западный (ЮЗАО), Южное Бутово, Варшавское шоссе. Строится компанией «ПИК». Квартира сдается в 3 квартале 2026 года с чистовой отделкой, в 15 минутах на машине от станции метрополитена Улица Скобелевская. Общая площадь квартиры - 36.2 кв. м. Этаж 7 из 17. ID квартиры на СтройкиРУ 652823, назовите его когда будете звонить.
Подробнее о ЖК Никольские луга
Особенности
Ход строительства
Документация
- Проектная декларация № 77-002763, корпус 2.4 05.06.20231.13 мб, pdf
- Градостроительный план земельного участка, корпус 2.4 09.02.202330.56 мб, pdf
- Проект договора участия в долевом строительстве, корпус 2.4 29.12.2022198.87 кб, pdf
- Извещение о начале строительства, корпус 2.4 03.11.20222.03 мб, pdf
- Разрешение на строительство 77-06-020483-2022, корпус 2.4 19.10.2022168.66 кб, pdf
- Схема планировочной организации земельного участка, корпус 2.4 19.10.20226.55 мб, pdf
- Экспертиза проектной документации, корпус 2.4 21.07.2022924.24 кб, pdf
- Проектная декларация № 77-002763, корпус 2.2 05.06.20231.13 мб, pdf
- Градостроительный план земельного участка, корпус 2.2 09.02.202330.56 мб, pdf
- Проект договора участия в долевом строительстве, корпус 2.2 29.12.2022198.87 кб, pdf
- Извещение о начале строительства, корпус 2.2 03.11.20222.03 мб, pdf
- Разрешение на строительство 77-06-020483-2022, корпус 2.2 19.10.2022168.66 кб, pdf
- Схема планировочной организации земельного участка, корпус 2.2 19.10.20226.55 мб, pdf
- Экспертиза проектной документации, корпус 2.2 21.07.2022924.24 кб, pdf
- Проектная декларация № 77-002763, корпус 2.1 05.06.20231.13 мб, pdf
- Градостроительный план земельного участка, корпус 2.1 09.02.202330.56 мб, pdf
- Проект договора участия в долевом строительстве, корпус 2.1 29.12.2022198.87 кб, pdf
- Извещение о начале строительства, корпус 2.1 03.11.20222.03 мб, pdf
- Схема планировочной организации земельного участка, корпус 2.1 19.10.20226.55 мб, pdf
- Разрешение на строительство 77-06-020483-2022, корпус 2.1 19.10.2022168.66 кб, pdf
- Экспертиза проектной документации, корпус 2.1 21.07.2022924.24 кб, pdf
- Проектная декларация № 77-002342, корпус 1.3 05.06.20231.27 мб, pdf
- Градостроительный план земельного участка, корпус 1.3 09.02.202330.56 мб, pdf
- Проект договора участия в долевом строительстве, корпус 1.3 29.12.2022198.87 кб, pdf
- Извещение о начале строительства, корпус 1.3 09.11.20217.23 мб, pdf
- Разрешение на строительство 77-220000-019811-2021, корпус 1.3 25.10.20211.47 мб, pdf
- Схема планировочной организации земельного участка, корпус 1.3 17.09.2021765.69 кб, pdf
- Экспертиза проектной документации, корпус 1.3 13.09.20211.13 мб, pdf
- Проектная декларация № 77-002342, корпус 1.2 05.06.20231.27 мб, pdf
- Градостроительный план земельного участка, корпус 1.2 09.02.202330.56 мб, pdf
- Проект договора участия в долевом строительстве, корпус 1.2 29.12.2022198.87 кб, pdf
- Извещение о начале строительства, корпус 1.2 09.11.20217.23 мб, pdf
- Разрешение на строительство 77-220000-019811-2021, корпус 1.2 25.10.20211.47 мб, pdf
- Схема планировочной организации земельного участка, корпус 1.2 17.09.2021765.69 кб, pdf
- Экспертиза проектной документации, корпус 1.2 13.09.20211.13 мб, pdf
- Проектная декларация № 77-002342, корпус 1.1 05.06.20231.27 мб, pdf
- Градостроительный план земельного участка, корпус 1.1 09.02.202330.56 мб, pdf
- Проект договора участия в долевом строительстве, корпус 1.1 29.12.2022202.93 кб, pdf
- Извещение о начале строительства, корпус 1.1 09.11.20217.23 мб, pdf
- Разрешение на строительство 77-220000-019811-2021, корпус 1.1 25.10.20211.47 мб, pdf
- Схема планировочной организации земельного участка, корпус 1.1 17.09.2021765.69 кб, pdf
- Экспертиза проектной документации, корпус 1.1 13.09.20211.13 мб, pdf


























