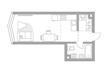
Квартира-студия, 29.76 м², ID 692608
Обновлено Сегодня, 07:39
18 470 490 ₽
620 648 ₽ / м2
Расположение
Описание
Студия квартира, 29.76 м2 в ЖК Мневники от Гранель от
Продается квартира-студия в новостройке ЖК Мневники от Гранель по цене 18 470 490 рублей, расположенная по адресу Москва, Северо-Западный (СЗАО), Хорошёво-Мнёвники, ул Народного Ополчения, д 34. Компания застройщик Гранель. Квартира сдается в II квартале 2028 года с черновой отделкой, в 13 минутах пешком от метро Октябрьское поле. Общая площадь квартиры - 29.76 м². Этаж 22 из 39. ID квартиры на СтройкиРУ 692608, сообщите его когда будете звонить.
Подробнее о ЖК Мневники от Гранель
Особенности
Ход строительства
1 упоминание о ЖК Мневники от Гранель в наших материалах

















