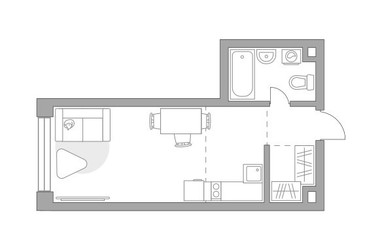
Квартира-студия, 28.41 м², ID 692554
Обновлено Сегодня, 07:39
17 332 995 ₽
610 102 ₽ / м2
Расположение
Описание
Студия квартира, 28.41 м2 в ЖК Мневники от Гранель от
Продается квартира-студия в новостройке ЖК Мневники от Гранель за 17 332 995 руб, находящаяся по адресу Москва, Северо-Западный (СЗАО), Хорошёво-Мнёвники, ул Народного Ополчения, д 34. Застройщик Гранель. Квартира сдается в 2 квартале 2028 года с черновой отделкой, в 13 минутах пешком от станции метрополитена Октябрьское поле. Общая площадь квартиры - 28.41 кв. м. Этаж 6 из 39. ID квартиры на СтройкиРУ 692554, назовите его когда будете звонить.
Подробнее о ЖК Мневники от Гранель
Особенности
Ход строительства
1 упоминание о ЖК Мневники от Гранель в наших материалах

















