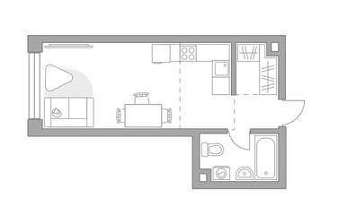
Квартира-студия, 28.41 м², ID 692546
Обновлено Сегодня, 07:39
17 213 147 ₽
605 883 ₽ / м2
Расположение
Описание
Студия квартира, 28.41 м2 в ЖК Мневники от Гранель от
Продается квартира-студия в новостройке ЖК Мневники от Гранель по цене 17 213 147 рублей, расположенная по адресу Москва, Северо-Западный (СЗАО), Хорошёво-Мнёвники, ул Народного Ополчения, д 34. Компания застройщик Гранель. Квартира сдается в II квартале 2028 года с черновой отделкой, в 13 минутах пешком от метро Октябрьское поле. Общая площадь квартиры - 28.41 м². Этаж 4 из 39. ID квартиры на СтройкиРУ 692546, сообщите его когда будете звонить.
Подробнее о ЖК Мневники от Гранель
Особенности
Ход строительства
1 упоминание о ЖК Мневники от Гранель в наших материалах

















