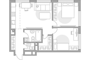
3-Комнатная квартира, 66.11 м², ID 689033
Обновлено Сегодня, 13:32
27 187 421 ₽
411 245 ₽ / м2
- Срок сдачи
- II квартал 2027
- Застройщик
- нет данных
- Общая площадь
- 66.11 м2
- Жилая площадь
- 45 м2
- Площадь кухни
- 66.11 м2
- Этаж
- 24 из 32
- Отделка
- Предчистовая
- ID
- 689033
Расположение
Описание
Трехкомнатная квартира, 66.11 м2 в ЖК Гранель Коломенское от
Продается трехкомнатная квартира в новостройке ЖК Гранель Коломенское стоимостью 27 187 421 рублей, по адресу Москва, Южный (ЮАО), Нагатино-Садовники, Каширское шоссе, д 1 стр 17. Компания застройщик Гранель. Квартира сдается в II квартале 2027 года с предчистовой отделкой, в 14 минутах пешком от станции метро Нагатинская. Общая площадь квартиры - 66.11 м². Этаж 24 из 32. ID квартиры на СтройкиРУ 689033, скажите его когда будете звонить.



















