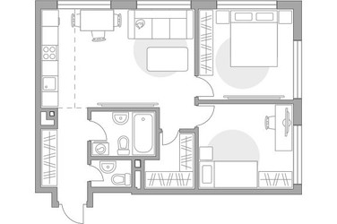
3-Комнатная квартира, 66.22 м², ID 689016
Обновлено Сегодня, 03:19
26 644 346 ₽
402 361 ₽ / м2
- Срок сдачи
- II квартал 2027
- Застройщик
- нет данных
- Общая площадь
- 66.22 м2
- Жилая площадь
- 44.95 м2
- Площадь кухни
- 66.22 м2
- Этаж
- 5 из 32
- Отделка
- Предчистовая
- ID
- 689016
Расположение
Описание
Трехкомнатная квартира, 66.22 м2 в ЖК Гранель Коломенское от
Продается 3-комн. квартира в новостройке ЖК Гранель Коломенское за 26 644 346 ₽, находящаяся по адресу Москва, Южный (ЮАО), Нагатино-Садовники, Каширское шоссе, д 1 стр 17. Строится компанией Гранель. Квартира сдается в 2 квартале 2027 года с предчистовой отделкой, в 14 минутах пешком от станции метрополитена Нагатинская. Общая площадь квартиры - 66.22 кв. м. Этаж 5 из 32. ID квартиры на СтройкиРУ 689016, назовите его когда будете звонить.



















