1-Комнатная квартира, 40.9 м², ID 701796
Обновлено Вчера, 13:27
12 026 794 ₽
294 054 ₽ / м2
- Срок сдачи
- I квартал 2026
- Застройщик
- нет данных
- Общая площадь
- 40.9 м2
- Жилая площадь
- 22.7 м2
- Площадь кухни
- 40.9 м2
- Этаж
- 10 из 23
- Отделка
- Черновая
- ID
- 701796
Расположение
Описание
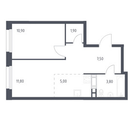
Однокомнатная квартира, 40.9 м2 в ЖК ЭкоБунино (Южное Бунино) от
Продается однокомнатная квартира в новостройке ЖК ЭкоБунино (Южное Бунино) по цене 12 026 794 рублей, расположенная по адресу Москва, Новомосковский (НАО), Сосенское, пр-кт Куприна, д 34 к 1. Компания застройщик МИЦ. Квартира сдается в II квартале 2024 года с черновой отделкой, в 25 минутах пешком от метро Коммунарка. Общая площадь квартиры - 40.9 м². Этаж 10 из 23. ID квартиры на СтройкиРУ 701796, сообщите его когда будете звонить.
Подробнее о ЖК ЭкоБунино (Южное Бунино)
Особенности
Ход строительства
Документация
- Проектная декларация № 77-002627, корпус 10-11 07.06.2023752.86 кб, pdf
- Проект договора участия в долевом строительстве, корпус 10-11 20.03.2023378.50 кб, pdf
- Извещение о начале строительства, корпус 10-11 06.12.20227.73 мб, pdf
- Схема планировочной организации земельного участка, корпус 10-11 19.05.20221.37 мб, pdf
- Разрешение на строительство 77-245000-020189-2022, корпус 10-11 04.05.20221.65 мб, pdf
- Экспертиза проектной документации, корпус 10-11 17.12.202130.04 мб, pdf
- Градостроительный план земельного участка, корпус 10-11 26.11.20217.19 мб, pdf
- Проектная декларация № 77-002374, корпус 18-19 07.06.2023686.43 кб, pdf
- Проект договора участия в долевом строительстве, корпус 18-19 20.03.2023372.50 кб, pdf
- Извещение о начале строительства, корпус 18-19 12.04.20223.54 мб, pdf
- Разрешение на строительство 77-245000-019907-2021, корпус 18-19 15.12.20211.74 мб, pdf
- Градостроительный план земельного участка, корпус 18-19 26.11.20217.19 мб, pdf
- Схема планировочной организации земельного участка, корпус 18-19 26.11.20211.98 мб, pdf
- Экспертиза проектной документации, корпус 18-19 27.10.2021445.78 кб, pdf
- Проектная декларация № 77-002302, корпус 17 07.06.2023544.98 кб, pdf
- Проект договора участия в долевом строительстве, корпус 17 20.03.2023368.00 кб, pdf
- Экспертиза проектной документации, корпус 17 13.04.2022310.79 кб, pdf
- Извещение о начале строительства, корпус 17 10.09.20212.98 мб, pdf
- Разрешение на строительство 77-245000-019667-2021, корпус 17 16.07.20212.07 мб, pdf
- Градостроительный план земельного участка, корпус 17 16.07.20217.19 мб, pdf
- Схема планировочной организации земельного участка, корпус 17 16.07.20213.58 мб, pdf
- Разрешение на ввод 77-17-010973-2022, корпус 16 27.09.2022100.58 кб, pdf
- Проектная декларация № 77-001978, корпус 16 02.09.2022416.33 кб, pdf
- Схема планировочной организации земельного участка, корпус 16 22.06.20221.04 мб, pdf
- Градостроительный план земельного участка, корпус 16 22.06.20223.18 мб, pdf
- Извещение о начале строительства, корпус 16 26.03.20202.64 мб, pdf
- Проект договора участия в долевом строительстве, корпус 16 20.03.2020481.92 кб, pdf
- Информация о выданных заключениях о соответствии застройщика и проектной декларации требованиям 214-ФЗ 77-001978 ЗОС/013/77-001978, корпус 16 16.03.2020708.28 кб, pdf
- Разрешение на строительство 75-245000-018724-2020, корпус 16 12.02.20202.00 мб, pdf
- Экспертиза проектной документации, корпус 16 19.03.2019497.67 кб, pdf
- Разрешение на ввод 77-17-010975-2022, корпус 12 27.09.2022100.84 кб, pdf
- Проектная декларация № 77-001979, корпус 12 02.09.2022475.68 кб, pdf
- Схема планировочной организации земельного участка, корпус 12 22.06.20226.35 мб, pdf
- Градостроительный план земельного участка, корпус 12 22.06.20223.18 мб, pdf
- Проект договора участия в долевом строительстве, корпус 12 11.10.2021238.00 кб, pdf
- Извещение о начале строительства, корпус 12 26.03.20202.64 мб, pdf
- Информация о выданных заключениях о соответствии застройщика и проектной декларации требованиям 214-ФЗ 77-001979 ЗОС/012/77-001979, корпус 12 16.03.2020704.60 кб, pdf
- Разрешение на строительство 77-245000-018725-2020, корпус 12 12.02.20201.81 мб, pdf
- Экспертиза проектной документации, корпус 12 16.04.2019411.35 кб, pdf
- Проектная декларация № 77-002627, корпус 11 07.06.2023752.86 кб, pdf
- Проект договора участия в долевом строительстве, корпус 11 20.03.2023378.50 кб, pdf
- Извещение о начале строительства, корпус 11 06.12.20227.73 мб, pdf
- Схема планировочной организации земельного участка, корпус 11 19.05.20221.37 мб, pdf
- Разрешение на строительство 77-245000-020189-2022, корпус 11 04.05.20221.65 мб, pdf
- Экспертиза проектной документации, корпус 11 17.12.202130.04 мб, pdf
- Градостроительный план земельного участка, корпус 11 26.11.20217.19 мб, pdf
- Проектная декларация № 77-002627, корпус 10 07.06.2023752.86 кб, pdf
- Проект договора участия в долевом строительстве, корпус 10 20.03.2023378.50 кб, pdf
- Извещение о начале строительства, корпус 10 06.12.20227.73 мб, pdf
- Схема планировочной организации земельного участка, корпус 10 19.05.20221.37 мб, pdf
- Разрешение на строительство 77-245000-020189-2022, корпус 10 04.05.20221.65 мб, pdf
- Экспертиза проектной документации, корпус 10 17.12.202130.04 мб, pdf
- Градостроительный план земельного участка, корпус 10 26.11.20217.19 мб, pdf
- Проектная декларация № 77-001553, корпус 9 08.02.2022360.75 кб, pdf
- Разрешение на ввод 77-245000-010498-2021, корпус 9 15.12.20212.08 мб, pdf
- Экспертиза проектной документации, корпус 9 18.10.2021559.16 кб, pdf
- Градостроительный план земельного участка, корпус 9 28.09.20212.58 мб, pdf
- Проект договора участия в долевом строительстве, корпус 9 28.05.2020475.88 кб, pdf
- Извещение о начале строительства, корпус 9 24.12.20183.13 мб, pdf
- Сведения об уплате застройщиком обязательных отчислений, корпус 9 13.11.2018185.35 кб, pdf
- Схема планировочной организации земельного участка, корпус 9 16.10.2018327.43 кб, pdf
- Информация о выданных заключениях о соответствии застройщика и проектной декларации требованиям 214-ФЗ 77-001553 77-13-447/8, корпус 9 05.10.2018183.97 кб, pdf
- Разрешение на строительство 77-245000-017171-2018, корпус 9 31.05.20184.50 мб, pdf
- Проектная декларация № 77-001551, корпус 8 08.02.2022362.42 кб, pdf
- Разрешение на ввод 77-245000-010505-2021, корпус 8 17.12.20212.06 мб, pdf
- Экспертиза проектной документации, корпус 8 18.10.2021291.58 кб, pdf
- Градостроительный план земельного участка, корпус 8 28.09.20212.58 мб, pdf
- Проект договора участия в долевом строительстве, корпус 8 28.05.202088.70 кб, pdf
- Извещение о начале строительства, корпус 8 24.12.20183.16 мб, pdf
- Сведения об уплате застройщиком обязательных отчислений, корпус 8 13.11.2018185.35 кб, pdf
- Схема планировочной организации земельного участка, корпус 8 16.10.2018327.43 кб, pdf
- Информация о выданных заключениях о соответствии застройщика и проектной декларации требованиям 214-ФЗ 77-001551 77-13-448/8, корпус 8 05.10.2018190.18 кб, pdf
- Разрешение на строительство 77-245000-017173-2018, корпус 8 31.05.20184.49 мб, pdf
- Проектная декларация № 77-000555, корпус 7 08.02.2022405.64 кб, pdf
- Разрешение на ввод 77-245000-009890-2021, корпус 7 27.01.2021822.52 кб, pdf
- Проект договора участия в долевом строительстве, корпус 7 28.05.202091.68 кб, pdf
- Схема планировочной организации земельного участка, корпус 7 21.05.20207.20 мб, pdf
- Сведения об уплате застройщиком обязательных отчислений, корпус 7 26.12.2018185.35 кб, pdf
- Экспертиза проектной документации, корпус 7 05.11.20182.37 мб, pdf
- Градостроительный план земельного участка, корпус 7 16.10.20189.03 мб, pdf
- Извещение о начале строительства, корпус 7 15.10.20184.94 мб, pdf
- Информация о выданных заключениях о соответствии застройщика и проектной декларации требованиям 214-ФЗ 77-000555 77-13-170/7, корпус 7 28.08.2017278.22 кб, pdf
- Разрешение на строительство 77-245000-015041-2017, корпус 7 09.08.2017137.20 кб, pdf
- Проектная декларация № 77-000556, корпус 6 08.02.2022373.81 кб, pdf
- Разрешение на ввод 77-245000-009893-2021, корпус 6 27.01.2021982.63 кб, pdf
- Проект договора участия в долевом строительстве, корпус 6 28.05.2020424.45 кб, pdf
- Схема планировочной организации земельного участка, корпус 6 21.05.20208.61 мб, pdf
- Сведения об уплате застройщиком обязательных отчислений, корпус 6 26.12.2018185.35 кб, pdf
- Экспертиза проектной документации, корпус 6 05.11.20182.35 мб, pdf
- Градостроительный план земельного участка, корпус 6 16.10.20189.03 мб, pdf
- Извещение о начале строительства, корпус 6 15.10.20184.60 мб, pdf
- Информация о выданных заключениях о соответствии застройщика и проектной декларации требованиям 214-ФЗ 77-000556 77-13-171/7, корпус 6 25.08.2017277.78 кб, pdf
- Разрешение на строительство 77-245000-015040-2017, корпус 6 09.08.2017176.04 кб, pdf
- Проектная декларация № 77-000554, корпус 5 08.02.2022363.94 кб, pdf
- Разрешение на ввод 77-245000-009891-2021, корпус 5 27.01.2021981.17 кб, pdf
- Проект договора участия в долевом строительстве, корпус 5 28.05.202087.73 кб, pdf
- Схема планировочной организации земельного участка, корпус 5 21.05.202010.42 мб, pdf
- Сведения об уплате застройщиком обязательных отчислений, корпус 5 26.12.2018185.35 кб, pdf
- Экспертиза проектной документации, корпус 5 05.11.20182.22 мб, pdf
- Градостроительный план земельного участка, корпус 5 16.10.20189.03 мб, pdf
- Извещение о начале строительства, корпус 5 15.10.2018194.51 кб, pdf
- Информация о выданных заключениях о соответствии застройщика и проектной декларации требованиям 214-ФЗ 77-000554 77-13-169/7, корпус 5 25.08.2017274.01 кб, pdf
- Разрешение на строительство 77-245000-015039-2017, корпус 5 09.08.2017147.42 кб, pdf
- Проектная декларация № 77-000557, корпус 4 08.02.2022361.15 кб, pdf
- Разрешение на ввод 77-245000-009892-2021, корпус 4 27.01.20211,018.81 кб, pdf
- Проект договора участия в долевом строительстве, корпус 4 28.05.2020410.40 кб, pdf
- Схема планировочной организации земельного участка, корпус 4 21.05.202020.02 мб, pdf
- Сведения об уплате застройщиком обязательных отчислений, корпус 4 26.12.2018185.35 кб, pdf
- Экспертиза проектной документации, корпус 4 05.11.20182.25 мб, pdf
- Извещение о начале строительства, корпус 4 15.10.2018203.17 кб, pdf
- Градостроительный план земельного участка, корпус 4 18.09.20189.03 мб, pdf
- Информация о выданных заключениях о соответствии застройщика и проектной декларации требованиям 214-ФЗ 77-000557 77-13-168/7, корпус 4 25.08.2017271.49 кб, pdf
- Разрешение на строительство 77-245000-015036-2017, корпус 4 09.08.2017508.85 кб, pdf
- Проектная декларация № 77-001509, корпус 3 08.02.2022325.12 кб, pdf
- Разрешение на ввод 77-245000-010026-2021, корпус 3 13.04.20211.93 мб, pdf
- Проект договора участия в долевом строительстве, корпус 3 28.05.202088.79 кб, pdf
- Схема планировочной организации земельного участка, корпус 3 21.05.20207.00 мб, pdf
- Сведения об уплате застройщиком обязательных отчислений, корпус 3 13.11.2018185.35 кб, pdf
- Экспертиза проектной документации, корпус 3 05.11.2018149.06 кб, pdf
- Извещение о начале строительства, корпус 3 15.10.2018230.10 кб, pdf
- Градостроительный план земельного участка, корпус 3 18.09.201813.34 мб, pdf
- Информация о выданных заключениях о соответствии застройщика и проектной декларации требованиям 214-ФЗ 77-001509 77-13-394/7, корпус 3 28.12.2017268.43 кб, pdf
- Разрешение на строительство 77-245000-015599-2017, корпус 3 20.10.2017149.06 кб, pdf
- Проектная декларация № 77-001508, корпус 2 08.02.2022403.09 кб, pdf
- Разрешение на ввод 77-245000-010113-2021, корпус 2 21.06.2021803.83 кб, pdf
- Проект договора участия в долевом строительстве, корпус 2 28.05.202088.82 кб, pdf
- Схема планировочной организации земельного участка, корпус 2 21.05.20208.00 мб, pdf
- Экспертиза проектной документации, корпус 2 18.05.202016.27 мб, pdf
- Сведения об уплате застройщиком обязательных отчислений, корпус 2 13.11.2018185.35 кб, pdf
- Извещение о начале строительства, корпус 2 15.10.2018258.61 кб, pdf
- Градостроительный план земельного участка, корпус 2 18.09.201813.34 мб, pdf
- Информация о выданных заключениях о соответствии застройщика и проектной декларации требованиям 214-ФЗ 77-001508 77-13-392/7, корпус 2 28.12.2017266.89 кб, pdf
- Разрешение на строительство 77-245000-015598-2017, корпус 2 20.10.2017787.24 кб, pdf
- Проектная декларация № 77-001507, корпус 1 08.02.2022296.17 кб, pdf
- Разрешение на ввод 77-245000-009949-2021, корпус 1 05.03.20211.94 мб, pdf
- Проект договора участия в долевом строительстве, корпус 1 28.05.2020351.38 кб, pdf
- Схема планировочной организации земельного участка, корпус 1 21.05.20203.95 мб, pdf
- Сведения об уплате застройщиком обязательных отчислений, корпус 1 13.11.2018185.35 кб, pdf
- Экспертиза проектной документации, корпус 1 05.11.20182.27 мб, pdf
- Извещение о начале строительства, корпус 1 15.10.2018261.96 кб, pdf
- Градостроительный план земельного участка, корпус 1 17.09.201813.34 мб, pdf
- Информация о выданных заключениях о соответствии застройщика и проектной декларации требованиям 214-ФЗ 77-001507 77-13-393/7, корпус 1 28.12.2017266.02 кб, pdf
- Разрешение на строительство 77-245000-015272-2017, корпус 1 07.09.2017165.37 кб, pdf


























