Реклама. Застройщик

Проектная декларация на наш.дом.рф. Токен: 2SDnjewfm2q.

Поствью

Реклама. Застройщик LEGENDA Intelligent Development

Проектная декларация на наш.дом.рф. Токен: 2SDnjewfm2q.

LEGENDA Intelligent DevelopmentПоствью

Реклама. Застройщик LEGENDA Intelligent Development

Проектная декларация на наш.дом.рф. Токен: 2SDnjewfm2q.

LEGENDA Intelligent DevelopmentПоствью

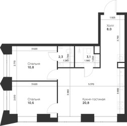
2-Комнатная квартира, 55.6 м², ID 683042

28 450 150 ₽

511 693 ₽ / м2

Срок сдачи
IV квартал 2027
Застройщик
нет данных
Общая площадь
55.6 м2
Жилая площадь
33.7 м2
Площадь кухни
55.6 м2
Этаж
12 из 40
Корпус
1
Отделка
не указана
Санузел
Совмещенный
ID
683042

Описание

Двухкомнатная квартира, 55.6 м2 в ЖК Войс от

Продается 2-комн. квартира в новостройке ЖК Войс по цене 28 450 150 руб, расположенная по адресу Москва, Юго-Восточный (ЮВАО), Текстильщики, 1-й Грайвороновский проезд, д 2 стр 2. Застройщик 3S Group. Квартира сдается в 4 квартале 2027 года в 20 минутах пешком от метро Текстильщики. Общая площадь квартиры - 55.6 кв. м. Этаж 12 из 40. ID квартиры на СтройкиРУ 683042, сообщите его когда будете звонить.

Подробнее о ЖК Войс

“Войс” - проект бизнес-класса от девелопера “3S Group” в юго-восточной части Москвы. Проект представляет собой 2 здания высотой от 33 до 40 этажей, между собой небоскребы объединены стилобатом. Во всех лотах будут панорамные широкие окна, просторные балконы или лоджии, функциональные помещения для гардероба или стиральных машин. Уникальные резиденции с потолками в 7 метров позволят организовать рабочий кабинет или домашний кинозал на антресольном этаже, на больших лоджиях можно будет обустроить личный сад. Лоты передаются в использование без отделки, площадь варьируется от 23 м2 до 87 м2. Инфраструктура и благоустройство В 20 минутах ходьбы от станции метро “Текстильщики”. До центра можно добраться за 25 минут. Есть выезд на ТТК и ЮВХ. Удобство для загородных поездок обеспечивает близкое нахождение железнодорожной станции “Новохохловская”, Курского и Павелецкого вокзалов Услуги консьержа В лобби появятся кофе-поинты, игровой уголок для детей и гостевой санузел с душем для питомцев Подземный этаж отведен под двухуровневый паркинг, оснащенный охраной и местами для габаритных автомобилей Во внутреннем дворе комплекса будет уютный парк с протяженными пешими аллеями, ландшафтным озеленением и интересными арт-объектами. Будут организованы спортивный кластер с тренажерами, детский плейхаб, места для настольных игр и йоги В проекте реализована концепция “двор без машин”, в комплексе ведется видеонаблюдение Поблизости находится крупный бизнес-центр, множество ресторанов, учебных заведений, медучреждений. В 10 минутах езды расположен коллекционный политехнический музей, кинотеатр, фитнес-салон За 15 минут можно прогуляться до сквера 200-летия Пушкина или Солнечного парка. 20 минут на машине займет поездка до парка аттракционов “Остров мечты”, природно-исторического заповедника “Кузьминки”, Жулебинского лесопарка и парка “Печатники” у Москвы-реки. Страница ЖК >>
Застройщик %_NAME_% Застройщик %_NAME_%
%_YEAR_%Год основания
99Сдано корпусов в 9 ЖК
999Строится корпусов в 99 ЖК

Жилые комплексы от

Ход строительства

Популярные жилые комплексы

    Похожие квартиры

    Двухкомнатная квартира, 55.6 м2

    28 450 150 ₽

    511 693 ₽ / м2

    Срок сдачи IV кв. 2027

    Застройщик

    Количество объектов:

    Застройщик %_NAME_%
    Показать телефон

    Застройщик