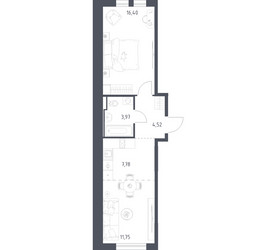
1-Комнатная квартира, 44.42 м², ID 701469
Обновлено Сегодня, 02:49
12 711 360 ₽
286 163 ₽ / м2
- Срок сдачи
- IV квартал 2025
- Застройщик
- нет данных
- Общая площадь
- 44.42 м2
- Жилая площадь
- 28.15 м2
- Площадь кухни
- 44.42 м2
- Этаж
- 10 из 14
- Отделка
- Черновая
- ID
- 701469
Расположение
Описание
Однокомнатная квартира, 44.42 м2 в ЖК Остафьево от
Продается однокомнатная квартира в новостройке ЖК Остафьево по цене 12 711 360 рублей, расположенная по адресу Москва, Новомосковский (НАО), Рязановское, ул Ивана Франко, д 8 стр 1. Компания застройщик Группа "Самолет". Квартира сдается в III квартале 2026 года с черновой отделкой, в 8 минутах на машине от метро Бунинская аллея. Общая площадь квартиры - 44.42 м². Этаж 10 из 14. ID квартиры на СтройкиРУ 701469, сообщите его когда будете звонить.
Подробнее о ЖК Остафьево
Особенности
Ход строительства
Документация
- Проект договора участия в долевом строительстве, корпус 16 06.06.2023191.25 кб, pdf
- Проектная декларация № 77-002684, корпус 16 06.06.2023652.00 кб, pdf
- Извещение о начале строительства, корпус 16 11.11.202225.43 кб, pdf
- Градостроительный план земельного участка, корпус 16 20.07.20222.35 мб, pdf
- Схема планировочной организации земельного участка, корпус 16 20.07.202216.49 мб, pdf
- Разрешение на строительство 77-244000-020303-2022, корпус 16 06.07.20221.88 мб, pdf
- Экспертиза проектной документации, корпус 16 29.06.20221.37 мб, pdf
- Проект договора участия в долевом строительстве, корпус 13 06.06.2023191.25 кб, pdf
- Проектная декларация № 77-002639, корпус 13 06.06.2023573.74 кб, pdf
- Извещение о начале строительства, корпус 13 15.08.202225.83 кб, pdf
- Градостроительный план земельного участка, корпус 13 20.07.20222.35 мб, pdf
- Схема планировочной организации земельного участка, корпус 13 20.07.202216.49 мб, pdf
- Разрешение на строительство 77-244000-020302-2022, корпус 13 06.07.20222.15 мб, pdf
- Экспертиза проектной документации, корпус 13 29.06.20221.37 мб, pdf
- Проектная декларация № 77-002684, корпус 15 06.06.2023652.00 кб, pdf
- Проект договора участия в долевом строительстве, корпус 15 06.06.2023191.25 кб, pdf
- Извещение о начале строительства, корпус 15 11.11.202225.43 кб, pdf
- Градостроительный план земельного участка, корпус 15 20.07.20222.35 мб, pdf
- Схема планировочной организации земельного участка, корпус 15 20.07.202216.49 мб, pdf
- Разрешение на строительство 77-244000-020303-2022, корпус 15 06.07.20221.88 мб, pdf
- Экспертиза проектной документации, корпус 15 29.06.20221.37 мб, pdf
- Проектная декларация № 77-002639, корпус 14 06.06.2023573.74 кб, pdf
- Проект договора участия в долевом строительстве, корпус 14 06.06.2023191.25 кб, pdf
- Извещение о начале строительства, корпус 14 15.08.202225.83 кб, pdf
- Градостроительный план земельного участка, корпус 14 20.07.20222.35 мб, pdf
- Схема планировочной организации земельного участка, корпус 14 20.07.202216.49 мб, pdf
- Разрешение на строительство 77-244000-020302-2022, корпус 14 06.07.20222.15 мб, pdf
- Экспертиза проектной документации, корпус 14 29.06.20221.37 мб, pdf
- Проектная декларация № 77-001146, корпус 11.1 24.03.2021500.82 кб, pdf
- Разрешение на ввод 77-244000-009918-2021, корпус 11.1 05.02.20213.32 мб, pdf
- Экспертиза проектной документации, корпус 11.1 08.11.20201.29 мб, pdf
- Проект договора участия в долевом строительстве, корпус 11.1 27.01.2020413.14 кб, pdf
- Заключение о степени готовности 77-244000-016940-2018, корпус 11.1 26.06.2019197.72 кб, pdf
- Извещение о начале строительства, корпус 11.1 19.06.2019115.50 кб, pdf
- Схема планировочной организации земельного участка, корпус 11.1 10.09.2018809.27 кб, pdf
- Градостроительный план земельного участка, корпус 11.1 04.09.20181.18 мб, pdf
- Сведения об уплате застройщиком обязательных отчислений, корпус 11.1 03.07.2018277.12 кб, pdf
- Информация о выданных заключениях о соответствии застройщика и проектной декларации требованиям 214-ФЗ 77-001146 77-13-267/8, корпус 11.1 28.06.2018265.67 кб, pdf
- Разрешение на строительство 77-244000-016940-2018, корпус 11.1 28.04.20182.10 мб, pdf
- Проектная декларация № 77-001907, корпус 11 08.04.2022637.93 кб, pdf
- Разрешение на ввод 77-244000-010680-2022, корпус 11 14.03.20223.51 мб, pdf
- Проект договора участия в долевом строительстве, корпус 11 13.09.2021160.14 кб, pdf
- Схема планировочной организации земельного участка, корпус 11 12.12.20192.59 мб, pdf
- Информация о выданных заключениях о соответствии застройщика и проектной декларации требованиям 214-ФЗ 77-001907 77-13-120/9, корпус 11 03.12.2019582.75 кб, pdf
- Извещение о начале строительства, корпус 11 03.12.2019107.67 кб, pdf
- Градостроительный план земельного участка, корпус 11 07.10.20191.34 мб, pdf
- Разрешение на строительство 77-244000-018490-2019, корпус 11 27.09.2019569.53 кб, pdf
- Экспертиза проектной документации, корпус 11 16.08.20191.91 мб, pdf
- Проектная декларация № 77-001146, корпус 11.2 24.03.2021500.82 кб, pdf
- Разрешение на ввод 77-244000-009918-2021, корпус 11.2 05.02.20213.32 мб, pdf
- Экспертиза проектной документации, корпус 11.2 08.11.20201.29 мб, pdf
- Проект договора участия в долевом строительстве, корпус 11.2 27.01.2020413.14 кб, pdf
- Заключение о степени готовности 77-244000-016940-2018, корпус 11.2 26.06.2019197.72 кб, pdf
- Извещение о начале строительства, корпус 11.2 19.06.2019115.50 кб, pdf
- Схема планировочной организации земельного участка, корпус 11.2 10.09.2018809.27 кб, pdf
- Градостроительный план земельного участка, корпус 11.2 04.09.20181.18 мб, pdf
- Сведения об уплате застройщиком обязательных отчислений, корпус 11.2 03.07.2018277.12 кб, pdf
- Информация о выданных заключениях о соответствии застройщика и проектной декларации требованиям 214-ФЗ 77-001146 77-13-267/8, корпус 11.2 28.06.2018265.67 кб, pdf
- Разрешение на строительство 77-244000-016940-2018, корпус 11.2 28.04.20182.10 мб, pdf
- Проектная декларация № 77-001146, корпус 11.3 24.03.2021500.82 кб, pdf
- Разрешение на ввод 77-244000-009918-2021, корпус 11.3 05.02.20213.32 мб, pdf
- Экспертиза проектной документации, корпус 11.3 08.11.20201.29 мб, pdf
- Проект договора участия в долевом строительстве, корпус 11.3 27.01.2020413.14 кб, pdf
- Заключение о степени готовности 77-244000-016940-2018, корпус 11.3 26.06.2019197.72 кб, pdf
- Извещение о начале строительства, корпус 11.3 19.06.2019115.50 кб, pdf
- Схема планировочной организации земельного участка, корпус 11.3 10.09.2018809.27 кб, pdf
- Градостроительный план земельного участка, корпус 11.3 04.09.20181.18 мб, pdf
- Сведения об уплате застройщиком обязательных отчислений, корпус 11.3 03.07.2018277.12 кб, pdf
- Информация о выданных заключениях о соответствии застройщика и проектной декларации требованиям 214-ФЗ 77-001146 77-13-267/8, корпус 11.3 28.06.2018265.67 кб, pdf
- Разрешение на строительство 77-244000-016940-2018, корпус 11.3 28.04.20182.10 мб, pdf
- Проектная декларация № 77-001146, корпус 12.2 24.03.2021500.82 кб, pdf
- Разрешение на ввод 77-244000-009918-2021, корпус 12.2 05.02.20213.32 мб, pdf
- Экспертиза проектной документации, корпус 12.2 08.11.20201.29 мб, pdf
- Проект договора участия в долевом строительстве, корпус 12.2 27.01.2020413.14 кб, pdf
- Заключение о степени готовности 77-244000-016940-2018, корпус 12.2 26.06.2019197.72 кб, pdf
- Извещение о начале строительства, корпус 12.2 19.06.2019115.50 кб, pdf
- Схема планировочной организации земельного участка, корпус 12.2 10.09.2018809.27 кб, pdf
- Градостроительный план земельного участка, корпус 12.2 04.09.20181.18 мб, pdf
- Сведения об уплате застройщиком обязательных отчислений, корпус 12.2 03.07.2018277.12 кб, pdf
- Информация о выданных заключениях о соответствии застройщика и проектной декларации требованиям 214-ФЗ 77-001146 77-13-267/8, корпус 12.2 28.06.2018265.67 кб, pdf
- Разрешение на строительство 77-244000-016940-2018, корпус 12.2 28.04.20182.10 мб, pdf
- Проектная декларация № 77-001146, корпус 12.3 24.03.2021500.82 кб, pdf
- Разрешение на ввод 77-244000-009918-2021, корпус 12.3 05.02.20213.32 мб, pdf
- Экспертиза проектной документации, корпус 12.3 08.11.20201.29 мб, pdf
- Проект договора участия в долевом строительстве, корпус 12.3 27.01.2020413.14 кб, pdf
- Заключение о степени готовности 77-244000-016940-2018, корпус 12.3 26.06.2019197.72 кб, pdf
- Извещение о начале строительства, корпус 12.3 19.06.2019115.50 кб, pdf
- Схема планировочной организации земельного участка, корпус 12.3 10.09.2018809.27 кб, pdf
- Градостроительный план земельного участка, корпус 12.3 04.09.20181.18 мб, pdf
- Сведения об уплате застройщиком обязательных отчислений, корпус 12.3 03.07.2018277.12 кб, pdf
- Информация о выданных заключениях о соответствии застройщика и проектной декларации требованиям 214-ФЗ 77-001146 77-13-267/8, корпус 12.3 28.06.2018265.67 кб, pdf
- Разрешение на строительство 77-244000-016940-2018, корпус 12.3 28.04.20182.10 мб, pdf
- Проектная декларация № 77-001146, корпус 12.1 24.03.2021500.82 кб, pdf
- Разрешение на ввод 77-244000-009918-2021, корпус 12.1 05.02.20213.32 мб, pdf
- Экспертиза проектной документации, корпус 12.1 08.11.20201.29 мб, pdf
- Проект договора участия в долевом строительстве, корпус 12.1 27.01.2020413.14 кб, pdf
- Заключение о степени готовности 77-244000-016940-2018, корпус 12.1 26.06.2019197.72 кб, pdf
- Извещение о начале строительства, корпус 12.1 19.06.2019115.50 кб, pdf
- Схема планировочной организации земельного участка, корпус 12.1 10.09.2018809.27 кб, pdf
- Градостроительный план земельного участка, корпус 12.1 04.09.20181.18 мб, pdf
- Сведения об уплате застройщиком обязательных отчислений, корпус 12.1 03.07.2018277.12 кб, pdf
- Информация о выданных заключениях о соответствии застройщика и проектной декларации требованиям 214-ФЗ 77-001146 77-13-267/8, корпус 12.1 28.06.2018265.67 кб, pdf
- Разрешение на строительство 77-244000-016940-2018, корпус 12.1 28.04.20182.10 мб, pdf
- Проектная декларация № 77-001907, корпус 8 08.04.2022637.93 кб, pdf
- Разрешение на ввод 77-244000-010680-2022, корпус 8 14.03.20223.51 мб, pdf
- Проект договора участия в долевом строительстве, корпус 8 13.09.2021160.14 кб, pdf
- Схема планировочной организации земельного участка, корпус 8 12.12.20192.59 мб, pdf
- Информация о выданных заключениях о соответствии застройщика и проектной декларации требованиям 214-ФЗ 77-001907 77-13-120/9, корпус 8 03.12.2019582.75 кб, pdf
- Извещение о начале строительства, корпус 8 03.12.2019107.67 кб, pdf
- Градостроительный план земельного участка, корпус 8 07.10.20191.34 мб, pdf
- Разрешение на строительство 77-244000-018490-2019, корпус 8 27.09.2019569.53 кб, pdf
- Экспертиза проектной документации, корпус 8 16.08.20191.91 мб, pdf
- Проектная декларация № 77-001908, корпус 9 08.04.2022637.15 кб, pdf
- Разрешение на ввод 77-244000-010716-2022, корпус 9 06.04.20222.83 мб, pdf
- Проект договора участия в долевом строительстве, корпус 9 13.09.2021160.14 кб, pdf
- Схема планировочной организации земельного участка, корпус 9 12.12.20192.56 мб, pdf
- Информация о выданных заключениях о соответствии застройщика и проектной декларации требованиям 214-ФЗ 77-001908 77-13-119/9, корпус 9 03.12.2019584.98 кб, pdf
- Извещение о начале строительства, корпус 9 03.12.2019107.65 кб, pdf
- Градостроительный план земельного участка, корпус 9 07.10.20191.65 мб, pdf
- Разрешение на строительство 77-244000-018463-2019, корпус 9 19.09.20191.16 мб, pdf
- Экспертиза проектной документации, корпус 9 16.08.2019587.36 кб, pdf
- Проектная декларация № 77-001907, корпус 7 08.04.2022637.93 кб, pdf
- Разрешение на ввод 77-244000-010680-2022, корпус 7 14.03.20223.51 мб, pdf
- Проект договора участия в долевом строительстве, корпус 7 13.09.2021160.14 кб, pdf
- Схема планировочной организации земельного участка, корпус 7 12.12.20192.59 мб, pdf
- Извещение о начале строительства, корпус 7 03.12.2019107.67 кб, pdf
- Информация о выданных заключениях о соответствии застройщика и проектной декларации требованиям 214-ФЗ 77-001907 77-13-120/9, корпус 7 03.12.2019582.75 кб, pdf
- Градостроительный план земельного участка, корпус 7 07.10.20191.34 мб, pdf
- Разрешение на строительство 77-244000-018490-2019, корпус 7 27.09.2019569.53 кб, pdf
- Экспертиза проектной документации, корпус 7 16.08.20191.91 мб, pdf
- Проектная декларация № 77-001908, корпус 10 08.04.2022637.15 кб, pdf
- Разрешение на ввод 77-244000-010716-2022, корпус 10 06.04.20222.83 мб, pdf
- Проект договора участия в долевом строительстве, корпус 10 13.09.2021160.14 кб, pdf
- Схема планировочной организации земельного участка, корпус 10 12.12.20192.56 мб, pdf
- Извещение о начале строительства, корпус 10 03.12.2019107.65 кб, pdf
- Информация о выданных заключениях о соответствии застройщика и проектной декларации требованиям 214-ФЗ 77-001908 77-13-119/9, корпус 10 03.12.2019584.98 кб, pdf
- Градостроительный план земельного участка, корпус 10 07.10.20191.65 мб, pdf
- Разрешение на строительство 77-244000-018463-2019, корпус 10 19.09.20191.16 мб, pdf
- Экспертиза проектной документации, корпус 10 16.08.2019587.36 кб, pdf
- Разрешение на ввод 77-20-011266-2023, корпус II очередь, корпус 11.1 03.02.2023165.60 кб, pdf
- Проектная декларация № 77-002193, корпус II очередь, корпус 11.1 09.01.2023313.17 кб, pdf
- Проект договора участия в долевом строительстве, корпус II очередь, корпус 11.1 02.08.2022178.67 кб, pdf
- Извещение о начале строительства, корпус II очередь, корпус 11.1 15.04.202155.39 кб, pdf
- Информация о выданных заключениях о соответствии застройщика и проектной декларации требованиям 214-ФЗ 77-002193 ЗОС/181/77-002193, корпус II очередь, корпус 11.1 24.03.20212.34 мб, pdf
- Разрешение на строительство 77-244000-019420-2021, корпус II очередь, корпус 11.1 02.03.20211.70 мб, pdf
- Градостроительный план земельного участка, корпус II очередь, корпус 11.1 07.12.20201.31 мб, pdf
- Схема планировочной организации земельного участка, корпус II очередь, корпус 11.1 07.12.20201.58 мб, pdf
- Экспертиза проектной документации, корпус II очередь, корпус 11.1 27.11.202061.72 мб, pdf
- Проектная декларация № 77-001146, корпус II очередь, корпус 9 24.03.2021500.82 кб, pdf
- Разрешение на ввод 77-244000-009918-2021, корпус II очередь, корпус 9 05.02.20213.32 мб, pdf
- Экспертиза проектной документации, корпус II очередь, корпус 9 08.11.20201.29 мб, pdf
- Проект договора участия в долевом строительстве, корпус II очередь, корпус 9 27.01.2020413.14 кб, pdf
- Заключение о степени готовности 77-244000-016940-2018, корпус II очередь, корпус 9 26.06.2019197.72 кб, pdf
- Извещение о начале строительства, корпус II очередь, корпус 9 19.06.2019115.50 кб, pdf
- Схема планировочной организации земельного участка, корпус II очередь, корпус 9 10.09.2018809.27 кб, pdf
- Градостроительный план земельного участка, корпус II очередь, корпус 9 04.09.20181.18 мб, pdf
- Сведения об уплате застройщиком обязательных отчислений, корпус II очередь, корпус 9 03.07.2018277.12 кб, pdf
- Информация о выданных заключениях о соответствии застройщика и проектной декларации требованиям 214-ФЗ 77-001146 77-13-267/8, корпус II очередь, корпус 9 28.06.2018265.67 кб, pdf
- Разрешение на строительство 77-244000-016940-2018, корпус II очередь, корпус 9 28.04.20182.10 мб, pdf
- Проектная декларация № 77-001146, корпус II очередь, корпус 10 24.03.2021500.82 кб, pdf
- Разрешение на ввод 77-244000-009918-2021, корпус II очередь, корпус 10 05.02.20213.32 мб, pdf
- Экспертиза проектной документации, корпус II очередь, корпус 10 08.11.20201.29 мб, pdf
- Проект договора участия в долевом строительстве, корпус II очередь, корпус 10 27.01.2020413.14 кб, pdf
- Заключение о степени готовности 77-244000-016940-2018, корпус II очередь, корпус 10 26.06.2019197.72 кб, pdf
- Извещение о начале строительства, корпус II очередь, корпус 10 19.06.2019115.50 кб, pdf
- Схема планировочной организации земельного участка, корпус II очередь, корпус 10 10.09.2018809.27 кб, pdf
- Градостроительный план земельного участка, корпус II очередь, корпус 10 04.09.20181.18 мб, pdf
- Сведения об уплате застройщиком обязательных отчислений, корпус II очередь, корпус 10 03.07.2018277.12 кб, pdf
- Информация о выданных заключениях о соответствии застройщика и проектной декларации требованиям 214-ФЗ 77-001146 77-13-267/8, корпус II очередь, корпус 10 28.06.2018265.67 кб, pdf
- Разрешение на строительство 77-244000-016940-2018, корпус II очередь, корпус 10 28.04.20182.10 мб, pdf
- Проектная декларация № 77-001146, корпус II очередь, корпус 7 24.03.2021500.82 кб, pdf
- Разрешение на ввод 77-244000-009918-2021, корпус II очередь, корпус 7 05.02.20213.32 мб, pdf
- Экспертиза проектной документации, корпус II очередь, корпус 7 08.11.20201.29 мб, pdf
- Проект договора участия в долевом строительстве, корпус II очередь, корпус 7 27.01.2020413.14 кб, pdf
- Заключение о степени готовности 77-244000-016940-2018, корпус II очередь, корпус 7 26.06.2019197.72 кб, pdf
- Извещение о начале строительства, корпус II очередь, корпус 7 19.06.2019115.50 кб, pdf
- Схема планировочной организации земельного участка, корпус II очередь, корпус 7 10.09.2018809.27 кб, pdf
- Градостроительный план земельного участка, корпус II очередь, корпус 7 04.09.20181.18 мб, pdf
- Сведения об уплате застройщиком обязательных отчислений, корпус II очередь, корпус 7 03.07.2018277.12 кб, pdf
- Информация о выданных заключениях о соответствии застройщика и проектной декларации требованиям 214-ФЗ 77-001146 77-13-267/8, корпус II очередь, корпус 7 28.06.2018265.67 кб, pdf
- Разрешение на строительство 77-244000-016940-2018, корпус II очередь, корпус 7 28.04.20182.10 мб, pdf
- Проектная декларация № 77-001146, корпус II очередь, корпус 8 24.03.2021500.82 кб, pdf
- Разрешение на ввод 77-244000-009918-2021, корпус II очередь, корпус 8 05.02.20213.32 мб, pdf
- Экспертиза проектной документации, корпус II очередь, корпус 8 08.11.20201.29 мб, pdf
- Проект договора участия в долевом строительстве, корпус II очередь, корпус 8 27.01.2020413.14 кб, pdf
- Заключение о степени готовности 77-244000-016940-2018, корпус II очередь, корпус 8 26.06.2019197.72 кб, pdf
- Извещение о начале строительства, корпус II очередь, корпус 8 19.06.2019115.50 кб, pdf
- Схема планировочной организации земельного участка, корпус II очередь, корпус 8 10.09.2018809.27 кб, pdf
- Градостроительный план земельного участка, корпус II очередь, корпус 8 04.09.20181.18 мб, pdf
- Сведения об уплате застройщиком обязательных отчислений, корпус II очередь, корпус 8 03.07.2018277.12 кб, pdf
- Информация о выданных заключениях о соответствии застройщика и проектной декларации требованиям 214-ФЗ 77-001146 77-13-267/8, корпус II очередь, корпус 8 28.06.2018265.67 кб, pdf
- Разрешение на строительство 77-244000-016940-2018, корпус II очередь, корпус 8 28.04.20182.10 мб, pdf





























