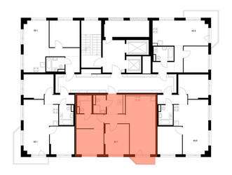
2-Комнатная квартира, 62.1 м², ID 716582
Обновлено Сегодня, 13:53
25 846 020 ₽
416 200 ₽ / м2
- Срок сдачи
- IV квартал 2028
- Застройщик
- нет данных
- Общая площадь
- 62.1 м2
- Жилая площадь
- 20.1 м2
- Площадь кухни
- 62.1 м2
- Этаж
- 5 из 23
- Отделка
- Чистовая
- ID
- 716582
Расположение
Описание
Двухкомнатная квартира, 62.1 м2 в ЖК Онежский вал от
Продается 2-комн. квартира в новостройке ЖК Онежский вал за 25 846 020 ₽, находящаяся по адресу Москва, Северный (САО), Западное Дегунино, Ильменский проезд. Строится компанией «ПИК». Квартира сдается в 4 квартале 2028 года с чистовой отделкой, в 10 минутах пешком от станции метрополитена Селигерская. Общая площадь квартиры - 62.1 кв. м. Этаж 5 из 23. ID квартиры на СтройкиРУ 716582, назовите его когда будете звонить.
















