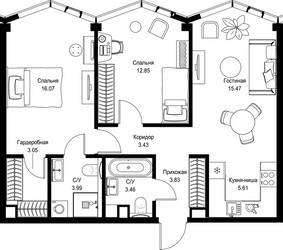
2-Комнатная квартира, 67.76 м², ID 743159
Обновлено Сегодня, 11:56
43 644 080 ₽
644 098 ₽ / м2
- Срок сдачи
- III квартал 2027
- Застройщик
- нет данных
- Общая площадь
- 67.76 м2
- Жилая площадь
- 44.39 м2
- Площадь кухни
- 67.76 м2
- Этаж
- 24 из 24
- Корпус
- 1.1
- Отделка
- не указана
- ID
- 743159
Расположение
Описание
Двухкомнатная квартира, 67.76 м2 в Дом премиум-класса МИРА от
Продается двухкомнатная квартира в новостройке Дом премиум-класса МИРА по цене 43 644 080 р, расположенная по адресу Москва, Северо-Восточный (СВАО), Алексеевский, пр-кт Мира, д 186А стр 1. Застройщик дома MR Group. Квартира сдается в III квартале 2027 года в 10 минутах пешком от метро Улица Сергея Эйзенштейна. Общая площадь квартиры - 67.76 м². Этаж 24 из 24. ID квартиры на СтройкиРУ 743159, сообщите его когда будете звонить.



















