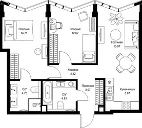
2-Комнатная квартира, 64.22 м², ID 743108
Обновлено Сегодня, 11:56
39 306 880 ₽
612 066 ₽ / м2
- Срок сдачи
- III квартал 2027
- Застройщик
- нет данных
- Общая площадь
- 64.22 м2
- Жилая площадь
- 41.35 м2
- Площадь кухни
- 64.22 м2
- Этаж
- 11 из 24
- Корпус
- 1.1
- Отделка
- не указана
- ID
- 743108
Расположение
Описание
Двухкомнатная квартира, 64.22 м2 в Дом премиум-класса МИРА от
Продается двухкомнатная квартира в новостройке Дом премиум-класса МИРА стоимостью 39 306 880 рублей, по адресу Москва, Северо-Восточный (СВАО), Алексеевский, пр-кт Мира, д 186А стр 1. Компания застройщик MR Group. Квартира сдается в III квартале 2027 года в 10 минутах пешком от станции метро Улица Сергея Эйзенштейна. Общая площадь квартиры - 64.22 м². Этаж 11 из 24. ID квартиры на СтройкиРУ 743108, скажите его когда будете звонить.



















