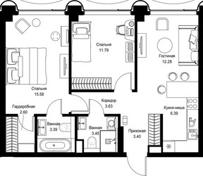
2-Комнатная квартира, 62.51 м², ID 743104
Обновлено Сегодня, 11:56
38 607 240 ₽
617 617 ₽ / м2
- Срок сдачи
- III квартал 2027
- Застройщик
- нет данных
- Общая площадь
- 62.51 м2
- Жилая площадь
- 39.65 м2
- Площадь кухни
- 62.51 м2
- Этаж
- 3 из 24
- Корпус
- 1.1
- Отделка
- не указана
- ID
- 743104
Расположение
Описание
Двухкомнатная квартира, 62.51 м2 в Дом премиум-класса МИРА от
Продается двухкомнатная квартира в новостройке Дом премиум-класса МИРА стоимостью 38 607 240 р, по адресу Москва, Северо-Восточный (СВАО), Алексеевский, пр-кт Мира, д 186А стр 1. Застройщик дома MR Group. Квартира сдается в III квартале 2027 года в 10 минутах пешком от станции метро Улица Сергея Эйзенштейна. Общая площадь квартиры - 62.51 м². Этаж 3 из 24. ID квартиры на СтройкиРУ 743104, скажите его когда будете звонить.



















