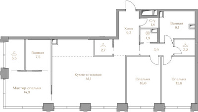
3-Комнатная квартира, 132.7 м², ID 737911
Обновлено Вчера, 15:38
215 079 008 ₽
1 620 791 ₽ / м2
- Срок сдачи
- IV квартал 2027
- Застройщик
- нет данных
- Общая площадь
- 132.7 м2
- Жилая площадь
- 46.7 м2
- Площадь кухни
- 132.7 м2
- Этаж
- 2 из 18
- Отделка
- Черновая
- ID
- 737911
Расположение
Описание
Трехкомнатная квартира, 132.7 м2 в ЖК Коллекция Лужники от
Продается трехкомнатная квартира в новостройке ЖК Коллекция Лужники стоимостью 215 079 008 р, по адресу Москва, Центральный (ЦАО), Хамовники, Лужнецкая наб. Застройщик дома СЗ Грандсоюзинвест. Квартира сдается в IV квартале 2027 года с черновой отделкой, в 14 минутах пешком от станции метро Воробьёвы горы. Общая площадь квартиры - 132.7 м². Этаж 2 из 18. ID квартиры на СтройкиРУ 737911, скажите его когда будете звонить.
Подробнее о ЖК Коллекция Лужники
Особенности
Ход строительства
Документация
- Проектная декларация № 77-002773, корпус Е (Mountain line 1,2,3) 08.06.20232.76 мб, pdf
- Проект договора участия в долевом строительстве, корпус Е (Mountain line 1,2,3) 15.11.2022877.49 кб, pdf
- Извещение о начале строительства, корпус Е (Mountain line 1,2,3) 10.11.2022261.93 кб, pdf
- Разрешение на строительство 77-01-020487-2022, корпус Е (Mountain line 1,2,3) 20.10.2022182.23 кб, pdf
- Схема планировочной организации земельного участка, корпус Е (Mountain line 1,2,3) 03.10.202271.06 мб, pdf
- Градостроительный план земельного участка, корпус Е (Mountain line 1,2,3) 29.09.20224.52 мб, pdf
- Экспертиза проектной документации, корпус Е (Mountain line 1,2,3) 22.06.20222.43 мб, pdf
- Проектная декларация № 77-002773, корпус C2 (Highline 2) 08.06.20232.76 мб, pdf
- Проект договора участия в долевом строительстве, корпус C2 (Highline 2) 10.11.2022966.18 кб, pdf
- Извещение о начале строительства, корпус C2 (Highline 2) 10.11.2022261.93 кб, pdf
- Разрешение на строительство 77-01-020487-2022, корпус C2 (Highline 2) 20.10.2022182.23 кб, pdf
- Схема планировочной организации земельного участка, корпус C2 (Highline 2) 03.10.202271.06 мб, pdf
- Градостроительный план земельного участка, корпус C2 (Highline 2) 29.09.20224.52 мб, pdf
- Экспертиза проектной документации, корпус C2 (Highline 2) 22.06.20222.43 мб, pdf
- Проектная декларация № 77-002773, корпус А2 (Waterpont 2) 08.06.20232.76 мб, pdf
- Проект договора участия в долевом строительстве, корпус А2 (Waterpont 2) 15.11.2022848.05 кб, pdf
- Извещение о начале строительства, корпус А2 (Waterpont 2) 10.11.2022261.93 кб, pdf
- Разрешение на строительство 77-01-020487-2022, корпус А2 (Waterpont 2) 20.10.2022182.23 кб, pdf
- Схема планировочной организации земельного участка, корпус А2 (Waterpont 2) 03.10.202271.06 мб, pdf
- Градостроительный план земельного участка, корпус А2 (Waterpont 2) 29.09.20224.52 мб, pdf
- Экспертиза проектной документации, корпус А2 (Waterpont 2) 22.06.20222.43 мб, pdf
- Проектная декларация № 77-002773, корпус В1 (Garden 1) 08.06.20232.76 мб, pdf
- Проект договора участия в долевом строительстве, корпус В1 (Garden 1) 10.11.2022966.06 кб, pdf
- Извещение о начале строительства, корпус В1 (Garden 1) 10.11.2022261.93 кб, pdf
- Разрешение на строительство 77-01-020487-2022, корпус В1 (Garden 1) 20.10.2022182.23 кб, pdf
- Схема планировочной организации земельного участка, корпус В1 (Garden 1) 03.10.202271.06 мб, pdf
- Градостроительный план земельного участка, корпус В1 (Garden 1) 29.09.20224.52 мб, pdf
- Экспертиза проектной документации, корпус В1 (Garden 1) 22.06.20222.43 мб, pdf
- Проектная декларация № 77-002773, корпус А1 (Waterpont 1) 08.06.20232.76 мб, pdf
- Извещение о начале строительства, корпус А1 (Waterpont 1) 10.11.2022261.93 кб, pdf
- Проект договора участия в долевом строительстве, корпус А1 (Waterpont 1) 10.11.2022966.19 кб, pdf
- Разрешение на строительство 77-01-020487-2022, корпус А1 (Waterpont 1) 20.10.2022182.23 кб, pdf
- Схема планировочной организации земельного участка, корпус А1 (Waterpont 1) 03.10.202271.06 мб, pdf
- Градостроительный план земельного участка, корпус А1 (Waterpont 1) 29.09.20224.52 мб, pdf
- Экспертиза проектной документации, корпус А1 (Waterpont 1) 22.06.20222.43 мб, pdf
- Проектная декларация № 77-002773, корпус HL3 08.06.20232.76 мб, pdf
- Проект договора участия в долевом строительстве, корпус HL3 15.11.2022848.05 кб, pdf
- Извещение о начале строительства, корпус HL3 10.11.2022261.93 кб, pdf
- Разрешение на строительство 77-01-020487-2022, корпус HL3 20.10.2022182.23 кб, pdf
- Схема планировочной организации земельного участка, корпус HL3 03.10.202271.06 мб, pdf
- Градостроительный план земельного участка, корпус HL3 29.09.20224.52 мб, pdf
- Экспертиза проектной документации, корпус HL3 22.06.20222.43 мб, pdf
- Проектная декларация № 77-002773, корпус HL1 08.06.20232.76 мб, pdf
- Проект договора участия в долевом строительстве, корпус HL1 15.11.2022878.05 кб, pdf
- Извещение о начале строительства, корпус HL1 10.11.2022261.93 кб, pdf
- Разрешение на строительство 77-01-020487-2022, корпус HL1 20.10.2022182.23 кб, pdf
- Схема планировочной организации земельного участка, корпус HL1 03.10.202271.06 мб, pdf
- Градостроительный план земельного участка, корпус HL1 29.09.20224.52 мб, pdf
- Экспертиза проектной документации, корпус HL1 22.06.20222.43 мб, pdf
- Проектная декларация № 77-002773, корпус G3 08.06.20232.76 мб, pdf
- Проект договора участия в долевом строительстве, корпус G3 15.11.2022877.92 кб, pdf
- Извещение о начале строительства, корпус G3 10.11.2022261.93 кб, pdf
- Разрешение на строительство 77-01-020487-2022, корпус G3 20.10.2022182.23 кб, pdf
- Схема планировочной организации земельного участка, корпус G3 03.10.202271.06 мб, pdf
- Градостроительный план земельного участка, корпус G3 29.09.20224.52 мб, pdf
- Экспертиза проектной документации, корпус G3 22.06.20222.43 мб, pdf
- Проектная декларация № 77-002773, корпус G2 08.06.20232.76 мб, pdf
- Проект договора участия в долевом строительстве, корпус G2 10.11.2022966.18 кб, pdf
- Извещение о начале строительства, корпус G2 10.11.2022261.93 кб, pdf
- Разрешение на строительство 77-01-020487-2022, корпус G2 20.10.2022182.23 кб, pdf
- Схема планировочной организации земельного участка, корпус G2 03.10.202271.06 мб, pdf
- Градостроительный план земельного участка, корпус G2 29.09.20224.52 мб, pdf
- Экспертиза проектной документации, корпус G2 22.06.20222.43 мб, pdf
- Проектная декларация № 77-002773, корпус W5 08.06.20232.76 мб, pdf
- Проект договора участия в долевом строительстве, корпус W5 15.11.2022848.05 кб, pdf
- Извещение о начале строительства, корпус W5 10.11.2022261.93 кб, pdf
- Разрешение на строительство 77-01-020487-2022, корпус W5 20.10.2022182.23 кб, pdf
- Схема планировочной организации земельного участка, корпус W5 03.10.202271.06 мб, pdf
- Градостроительный план земельного участка, корпус W5 29.09.20224.52 мб, pdf
- Экспертиза проектной документации, корпус W5 22.06.20222.43 мб, pdf
- Проектная декларация № 77-002773, корпус W4 08.06.20232.76 мб, pdf
- Извещение о начале строительства, корпус W4 10.11.2022261.93 кб, pdf
- Проект договора участия в долевом строительстве, корпус W4 10.11.2022966.03 кб, pdf
- Разрешение на строительство 77-01-020487-2022, корпус W4 20.10.2022182.23 кб, pdf
- Схема планировочной организации земельного участка, корпус W4 03.10.202271.06 мб, pdf
- Градостроительный план земельного участка, корпус W4 29.09.20224.52 мб, pdf
- Экспертиза проектной документации, корпус W4 22.06.20222.43 мб, pdf
- Проектная декларация № 77-002773, корпус W3 08.06.20232.76 мб, pdf
- Проект договора участия в долевом строительстве, корпус W3 15.11.2022848.05 кб, pdf
- Извещение о начале строительства, корпус W3 10.11.2022261.93 кб, pdf
- Разрешение на строительство 77-01-020487-2022, корпус W3 20.10.2022182.23 кб, pdf
- Схема планировочной организации земельного участка, корпус W3 03.10.202271.06 мб, pdf
- Градостроительный план земельного участка, корпус W3 29.09.20224.52 мб, pdf
- Экспертиза проектной документации, корпус W3 22.06.20222.43 мб, pdf
- Проектная декларация № 77-002773, корпус W2 08.06.20232.76 мб, pdf
- Проект договора участия в долевом строительстве, корпус W2 15.11.2022848.05 кб, pdf
- Извещение о начале строительства, корпус W2 10.11.2022261.93 кб, pdf
- Разрешение на строительство 77-01-020487-2022, корпус W2 20.10.2022182.23 кб, pdf
- Схема планировочной организации земельного участка, корпус W2 03.10.202271.06 мб, pdf
- Градостроительный план земельного участка, корпус W2 29.09.20224.52 мб, pdf
- Экспертиза проектной документации, корпус W2 22.06.20222.43 мб, pdf
- Проектная декларация № 77-002773, корпус W1 08.06.20232.76 мб, pdf
- Проект договора участия в долевом строительстве, корпус W1 10.11.2022966.19 кб, pdf
- Извещение о начале строительства, корпус W1 10.11.2022261.93 кб, pdf
- Разрешение на строительство 77-01-020487-2022, корпус W1 20.10.2022182.23 кб, pdf
- Схема планировочной организации земельного участка, корпус W1 03.10.202271.06 мб, pdf
- Градостроительный план земельного участка, корпус W1 29.09.20224.52 мб, pdf
- Экспертиза проектной документации, корпус W1 22.06.20222.43 мб, pdf
- Проектная декларация № 77-002773, корпус ML 08.06.20232.76 мб, pdf
- Проект договора участия в долевом строительстве, корпус ML 15.11.2022877.49 кб, pdf
- Извещение о начале строительства, корпус ML 10.11.2022261.93 кб, pdf
- Разрешение на строительство 77-01-020487-2022, корпус ML 20.10.2022182.23 кб, pdf
- Схема планировочной организации земельного участка, корпус ML 03.10.202271.06 мб, pdf
- Градостроительный план земельного участка, корпус ML 29.09.20224.52 мб, pdf
- Экспертиза проектной документации, корпус ML 22.06.20222.43 мб, pdf
- Проектная декларация № 77-002773, корпус HL2 08.06.20232.76 мб, pdf
- Проект договора участия в долевом строительстве, корпус HL2 15.11.2022878.08 кб, pdf
- Извещение о начале строительства, корпус HL2 10.11.2022261.93 кб, pdf
- Разрешение на строительство 77-01-020487-2022, корпус HL2 20.10.2022182.23 кб, pdf
- Схема планировочной организации земельного участка, корпус HL2 03.10.202271.06 мб, pdf
- Градостроительный план земельного участка, корпус HL2 29.09.20224.52 мб, pdf
- Экспертиза проектной документации, корпус HL2 22.06.20222.43 мб, pdf
- Проектная декларация № 77-002773, корпус G1 08.06.20232.76 мб, pdf
- Извещение о начале строительства, корпус G1 10.11.2022261.93 кб, pdf
- Проект договора участия в долевом строительстве, корпус G1 10.11.2022966.06 кб, pdf
- Разрешение на строительство 77-01-020487-2022, корпус G1 20.10.2022182.23 кб, pdf
- Схема планировочной организации земельного участка, корпус G1 03.10.202271.06 мб, pdf
- Градостроительный план земельного участка, корпус G1 29.09.20224.52 мб, pdf
- Экспертиза проектной документации, корпус G1 22.06.20222.43 мб, pdf






















