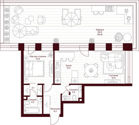
1-Комнатная квартира, 65.7 м², ID 708509
Обновлено Сегодня, 07:03
74 103 032 ₽
1 127 900 ₽ / м2
- Срок сдачи
- II квартал 2027
- Застройщик
- нет данных
- Общая площадь
- 65.7 м2
- Площадь кухни
- 65.7 м2
- Этаж
- 2 из 15
- Отделка
- не указана
- ID
- 708509
Расположение
Описание
Однокомнатная квартира, 65.7 м2 в ЖК Дом 7 Даниловский от
Продается однокомнатная квартира в новостройке ЖК Дом 7 Даниловский стоимостью 74 103 032 рублей, по адресу Москва, Южный (ЮАО), Даниловский, ул Серпуховский Вал, д 7. Компания застройщик COLDY. Квартира сдается в II квартале 2027 года в 7 минутах пешком от станции метро Тульская. Общая площадь квартиры - 65.7 м². Этаж 2 из 15. ID квартиры на СтройкиРУ 708509, скажите его когда будете звонить.


























