1-Комнатная квартира, 39.86 м², ID 741017
Обновлено Сегодня, 06:54
21 467 320 ₽
538 568 ₽ / м2
- Срок сдачи
- III квартал 2027
- Застройщик
- нет данных
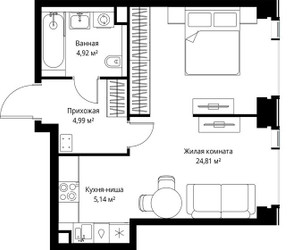
- Общая площадь
- 39.86 м2
- Жилая площадь
- 24.81 м2
- Площадь кухни
- 39.86 м2
- Этаж
- 33 из 48
- Отделка
- не указана
- ID
- 741017
Расположение
Описание
Однокомнатная квартира, 39.86 м2 в Мультиквартал СИТИДЗЕН от
Продается однокомнатная квартира в новостройке Мультиквартал СИТИДЗЕН стоимостью 21 467 320 рублей, по адресу Москва, Северо-Западный (СЗАО), Покровское-Стрешнево, ул Вишнёвая, д 7. Компания застройщик MR Group. Квартира сдается в II квартале 2029 года в 9 минутах пешком от станции метро Тушинская. Общая площадь квартиры - 39.86 м². Этаж 33 из 56. ID квартиры на СтройкиРУ 741017, скажите его когда будете звонить.





































