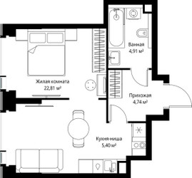
1-Комнатная квартира, 37.86 м², ID 741009
Обновлено Сегодня, 06:54
21 180 853 ₽
559 452 ₽ / м2
- Срок сдачи
- III квартал 2027
- Застройщик
- нет данных
- Общая площадь
- 37.86 м2
- Жилая площадь
- 22.81 м2
- Площадь кухни
- 37.86 м2
- Этаж
- 42 из 48
- Отделка
- не указана
- ID
- 741009
Расположение
Описание
Однокомнатная квартира, 37.86 м2 в Мультиквартал СИТИДЗЕН от
Продается 1-комн. квартира в новостройке Мультиквартал СИТИДЗЕН стоимостью 21 180 853 ₽, по адресу Москва, Северо-Западный (СЗАО), Покровское-Стрешнево, ул Вишнёвая, д 7. Строится компанией MR Group. Квартира сдается в 2 квартале 2029 года в 9 минутах пешком от станции метро Тушинская. Общая площадь квартиры - 37.86 кв. м. Этаж 42 из 56. ID квартиры на СтройкиРУ 741009, скажите его когда будете звонить.





































