1-Комнатная квартира, 39.53 м², ID 740993
Обновлено Сегодня, 06:54
20 820 451 ₽
526 700 ₽ / м2
- Срок сдачи
- III квартал 2027
- Застройщик
- нет данных
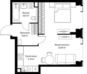
- Общая площадь
- 39.53 м2
- Жилая площадь
- 24.49 м2
- Площадь кухни
- 39.53 м2
- Этаж
- 19 из 48
- Отделка
- не указана
- ID
- 740993
Расположение
Описание
Однокомнатная квартира, 39.53 м2 в Мультиквартал СИТИДЗЕН от
Продается однокомнатная квартира в новостройке Мультиквартал СИТИДЗЕН за 20 820 451 рублей, находящаяся по адресу Москва, Северо-Западный (СЗАО), Покровское-Стрешнево, ул Вишнёвая, д 7. Компания застройщик MR Group. Квартира сдается в II квартале 2029 года в 9 минутах пешком от станции метрополитена Тушинская. Общая площадь квартиры - 39.53 м². Этаж 19 из 56. ID квартиры на СтройкиРУ 740993, назовите его когда будете звонить.





































