3-Комнатная квартира, 82.5 м², ID 698253
Обновлено Сегодня, 03:17
45 361 388 ₽
549 835 ₽ / м2
- Срок сдачи
- II квартал 2028
- Застройщик
- нет данных
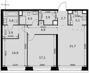
- Общая площадь
- 82.5 м2
- Жилая площадь
- 53.7 м2
- Площадь кухни
- 82.5 м2
- Этаж
- 44 из 57
- Отделка
- Черновая
- ID
- 698253
Расположение
Описание
Трехкомнатная квартира, 82.5 м2 в ЖК Амбер Сити от
Продается 3-комн. квартира в новостройке ЖК Амбер Сити по цене 45 361 388 руб, расположенная по адресу Москва, Северный (САО), Хорошёвский, 3-й Хорошёвский проезд, д 3А. Застройщик ФСК. Квартира сдается в 3 квартале 2027 года с черновой отделкой, в 9 минутах пешком от метро Беговая. Общая площадь квартиры - 82.5 кв. м. Этаж 44 из 57. ID квартиры на СтройкиРУ 698253, сообщите его когда будете звонить.
Подробнее о ЖК Амбер Сити
Особенности
Ход строительства
1 упоминание о ЖК Амбер Сити в наших материалах



















