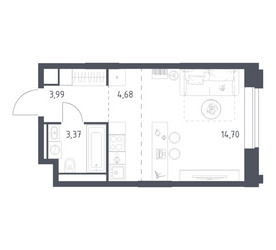
Квартира-студия, 26.74 м², ID 700382
Обновлено Вчера, 19:13
22 832 052 ₽
853 854 ₽ / м2
Расположение
Описание
Студия квартира, 26.74 м2 в ЖК Верейская 41 от
Продается квартира-студия в новостройке ЖК Верейская 41 стоимостью 22 832 052 руб, по адресу Москва, Западный (ЗАО), Можайский, ул Верейская, д 41. Застройщик Группа "Самолет". Квартира сдается в 2 квартале 2026 года с чистовой отделкой, в 26 минутах на машине от станции метро Славянский бульвар. Общая площадь квартиры - 26.74 кв. м. Этаж 8 из 14. ID квартиры на СтройкиРУ 700382, скажите его когда будете звонить.
Подробнее о ЖК Верейская 41
Особенности
Ход строительства
Документация
- Проектная декларация № 77-002429, корпус 3.2 13.06.20231.79 мб, pdf
- Проект договора участия в долевом строительстве, корпус 3.2 06.06.2023293.16 кб, pdf
- Экспертиза проектной документации, корпус 3.2 06.03.2023650.48 кб, pdf
- Извещение о начале строительства, корпус 3.2 15.08.202256.98 кб, pdf
- Схема планировочной организации земельного участка, корпус 3.2 16.02.202228.34 мб, pdf
- Градостроительный план земельного участка, корпус 3.2 24.01.20223.24 мб, pdf
- Разрешение на строительство 77-162000-019953-2021, корпус 3.2 28.12.20211.44 мб, pdf
- Проектная декларация № 77-002429, корпус 2.2 13.06.20231.79 мб, pdf
- Проект договора участия в долевом строительстве, корпус 2.2 06.06.2023293.16 кб, pdf
- Экспертиза проектной документации, корпус 2.2 06.03.2023650.48 кб, pdf
- Извещение о начале строительства, корпус 2.2 15.08.202256.98 кб, pdf
- Схема планировочной организации земельного участка, корпус 2.2 16.02.202228.34 мб, pdf
- Градостроительный план земельного участка, корпус 2.2 24.01.20223.24 мб, pdf
- Разрешение на строительство 77-162000-019953-2021, корпус 2.2 28.12.20211.44 мб, pdf
- Проектная декларация № 77-002429, корпус 4.2 13.06.20231.79 мб, pdf
- Проект договора участия в долевом строительстве, корпус 4.2 06.06.2023293.16 кб, pdf
- Экспертиза проектной документации, корпус 4.2 06.03.2023650.48 кб, pdf
- Извещение о начале строительства, корпус 4.2 15.08.202256.98 кб, pdf
- Схема планировочной организации земельного участка, корпус 4.2 16.02.202228.34 мб, pdf
- Градостроительный план земельного участка, корпус 4.2 24.01.20223.24 мб, pdf
- Разрешение на строительство 77-162000-019953-2021, корпус 4.2 28.12.20211.44 мб, pdf
- Проектная декларация № 77-002429, корпус 4 13.06.20231.79 мб, pdf
- Проект договора участия в долевом строительстве, корпус 4 06.06.2023293.16 кб, pdf
- Экспертиза проектной документации, корпус 4 06.03.2023650.48 кб, pdf
- Извещение о начале строительства, корпус 4 15.08.202256.98 кб, pdf
- Схема планировочной организации земельного участка, корпус 4 16.02.202228.34 мб, pdf
- Градостроительный план земельного участка, корпус 4 24.01.20223.24 мб, pdf
- Разрешение на строительство 77-162000-019953-2021, корпус 4 28.12.20211.44 мб, pdf
- Проектная декларация № 77-002429, корпус 3 13.06.20231.79 мб, pdf
- Проект договора участия в долевом строительстве, корпус 3 06.06.2023293.16 кб, pdf
- Экспертиза проектной документации, корпус 3 06.03.2023650.48 кб, pdf
- Извещение о начале строительства, корпус 3 15.08.202256.98 кб, pdf
- Схема планировочной организации земельного участка, корпус 3 16.02.202228.34 мб, pdf
- Градостроительный план земельного участка, корпус 3 24.01.20223.24 мб, pdf
- Разрешение на строительство 77-162000-019953-2021, корпус 3 28.12.20211.44 мб, pdf
- Проектная декларация № 77-002429, корпус 2 13.06.20231.79 мб, pdf
- Проект договора участия в долевом строительстве, корпус 2 06.06.2023293.16 кб, pdf
- Экспертиза проектной документации, корпус 2 06.03.2023650.48 кб, pdf
- Извещение о начале строительства, корпус 2 15.08.202256.98 кб, pdf
- Схема планировочной организации земельного участка, корпус 2 16.02.202228.34 мб, pdf
- Градостроительный план земельного участка, корпус 2 24.01.20223.24 мб, pdf
- Разрешение на строительство 77-162000-019953-2021, корпус 2 28.12.20211.44 мб, pdf
- Проектная декларация № 77-002429, корпус 1 13.06.20231.79 мб, pdf
- Проект договора участия в долевом строительстве, корпус 1 06.06.2023293.16 кб, pdf
- Экспертиза проектной документации, корпус 1 06.03.2023650.48 кб, pdf
- Извещение о начале строительства, корпус 1 15.08.202256.98 кб, pdf
- Схема планировочной организации земельного участка, корпус 1 16.02.202228.34 мб, pdf
- Градостроительный план земельного участка, корпус 1 24.01.20223.24 мб, pdf
- Разрешение на строительство 77-162000-019953-2021, корпус 1 28.12.20211.44 мб, pdf





























