3-Комнатная квартира, 98.9 м², ID 426436
Обновлено месяц назад
30 896 000 ₽
312 396 ₽ / м2
- Срок сдачи
- I квартал 2024
- Застройщик
- нет данных
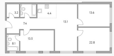
- Общая площадь
- 98.9 м2
- Жилая площадь
- 67.2 м2
- Площадь кухни
- 4.5 м2
- Высота потолков
- 2.7 м
- Этаж
- 2 из 33
- Корпус
- 5
- Отделка
- Черновая
- Санузел
- Раздельный
- ID
- 426436
Расположение
Описание
Трехкомнатная квартира, 98.9 м2 в ЖК Тринити-2 от
Продается 3-комн. квартира в новостройке ЖК Тринити-2 за 30 896 000 руб, находящаяся по адресу Москва, Северный (САО), Западное Дегунино, Дмитровское шоссе, д 71 к 5. Застройщик Гранель. Квартира сдается в 1 квартале 2024 года с черновой отделкой, в 3 минутах пешком от станции метрополитена Верхние Лихоборы. Общая площадь квартиры - 98.9 кв. м. Этаж 2 из 33. ID квартиры на СтройкиРУ 426436, назовите его когда будете звонить.
Подробнее о ЖК Тринити-2
Особенности
Ход строительства
Документация
- Проектная декларация № 77-001872, корпус 5 31.03.2022603.85 кб, pdf
- Разрешение на ввод № 77-131000-010504-2021, корпус 5 17.12.20212.15 мб, pdf
- Проект договора участия в долевом строительстве, корпус 5 15.11.2021325.41 кб, pdf
- Градостроительный план земельного участка, корпус 5 28.10.20212.16 мб, pdf
- Экспертиза проектной документации, корпус 5 07.10.2021341.54 кб, pdf
- Схема планировочной организации земельного участка, корпус 5 18.12.20191,014.47 кб, pdf
- Извещение о начале строительства, корпус 5 16.08.2019771.05 кб, pdf
- Информация о выданных заключениях о соответствии застройщика и проектной декларации требованиям 214-ФЗ 77-001872 77-13-86/9, корпус 5 07.08.2019554.47 кб, pdf
- Разрешение на строительство 77-131000-018167-2019, корпус 5 19.03.20195.37 мб, pdf
- Проектная декларация № 77-001872, корпус 4 31.03.2022603.85 кб, pdf
- Разрешение на ввод № 77-131000-010504-2021, корпус 4 17.12.20212.15 мб, pdf
- Проект договора участия в долевом строительстве, корпус 4 15.11.2021325.41 кб, pdf
- Градостроительный план земельного участка, корпус 4 28.10.20212.16 мб, pdf
- Экспертиза проектной документации, корпус 4 07.10.2021341.54 кб, pdf
- Схема планировочной организации земельного участка, корпус 4 18.12.20191,014.47 кб, pdf
- Извещение о начале строительства, корпус 4 16.08.2019771.05 кб, pdf
- Информация о выданных заключениях о соответствии застройщика и проектной декларации требованиям 214-ФЗ 77-001872 77-13-86/9, корпус 4 07.08.2019554.47 кб, pdf
- Разрешение на строительство 77-131000-018167-2019, корпус 4 19.03.20195.37 мб, pdf

















