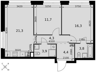
3-Комнатная квартира, 65.7 м², ID 698138
Обновлено Сегодня, 03:12
42 435 632 ₽
645 900 ₽ / м2
- Срок сдачи
- II квартал 2030
- Застройщик
- нет данных
- Общая площадь
- 65.7 м2
- Жилая площадь
- 28 м2
- Площадь кухни
- 65.7 м2
- Этаж
- 11 из 27
- Корпус
- -
- Отделка
- Чистовая
- ID
- 698138
Расположение
Описание
Трехкомнатная квартира, 65.7 м2 в ЖК Симоновский вал от
Продается трехкомнатная квартира в новостройке ЖК Симоновский вал стоимостью 42 435 632 рублей, по адресу Москва, Юго-Восточный (ЮВАО), Южнопортовый, ул Новоостаповская, д 6А. Компания застройщик ФСК. Квартира сдается в II квартале 2030 года с чистовой отделкой, в 8 минутах пешком от станции метро Дубровка. Общая площадь квартиры - 65.7 м². Этаж 11 из 27. ID квартиры на СтройкиРУ 698138, скажите его когда будете звонить.


















