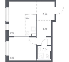
1-Комнатная квартира, 43.37 м², ID 701392
Обновлено Сегодня, 05:54
12 907 292 ₽
297 609 ₽ / м2
- Срок сдачи
- II квартал 2026
- Застройщик
- нет данных
- Общая площадь
- 43.37 м2
- Жилая площадь
- 24.1 м2
- Площадь кухни
- 43.37 м2
- Этаж
- 1 из 12
- Отделка
- Чистовая
- ID
- 701392
Расположение
Описание
Однокомнатная квартира, 43.37 м2 в ЖК Подольские кварталы от
Продается 1-комн. квартира в новостройке ЖК Подольские кварталы стоимостью 12 907 292 руб, по адресу Москва, Новомосковский (НАО), Щербинка, деревня Девятское, ул Центральная. Застройщик Группа "Самолет". Квартира сдается в 2 квартале 2026 года с чистовой отделкой, . Общая площадь квартиры - 43.37 кв. м. Этаж 1 из 12. ID квартиры на СтройкиРУ 701392, скажите его когда будете звонить.
Подробнее о ЖК Подольские кварталы
Особенности
Ход строительства
Документация
- Проект договора участия в долевом строительстве, корпус 4 06.06.2023739.05 кб, pdf
- Проектная декларация № 77-002846, корпус 4 06.06.20231.06 мб, pdf
- Извещение о начале строительства, корпус 4 16.05.2023194.39 кб, pdf
- Градостроительный план земельного участка, корпус 4 11.04.20234.33 мб, pdf
- Схема планировочной организации земельного участка, корпус 4 11.04.202356.17 мб, pdf
- Разрешение на строительство 77-20-020769-2023, корпус 4 03.04.2023106.32 кб, pdf
- Экспертиза проектной документации, корпус 4 10.03.20231.87 мб, pdf
- Проект договора участия в долевом строительстве, корпус 3 06.06.2023739.05 кб, pdf
- Проектная декларация № 77-002846, корпус 3 06.06.20231.06 мб, pdf
- Извещение о начале строительства, корпус 3 16.05.2023194.39 кб, pdf
- Схема планировочной организации земельного участка, корпус 3 11.04.202356.17 мб, pdf
- Градостроительный план земельного участка, корпус 3 11.04.20234.33 мб, pdf
- Разрешение на строительство 77-20-020769-2023, корпус 3 03.04.2023106.32 кб, pdf
- Экспертиза проектной документации, корпус 3 10.03.20231.87 мб, pdf
- Проект договора участия в долевом строительстве, корпус 2 06.06.2023739.05 кб, pdf
- Проектная декларация № 77-002846, корпус 2 06.06.20231.06 мб, pdf
- Извещение о начале строительства, корпус 2 16.05.2023194.39 кб, pdf
- Градостроительный план земельного участка, корпус 2 11.04.20234.33 мб, pdf
- Схема планировочной организации земельного участка, корпус 2 11.04.202356.17 мб, pdf
- Разрешение на строительство 77-20-020769-2023, корпус 2 03.04.2023106.32 кб, pdf
- Экспертиза проектной документации, корпус 2 10.03.20231.87 мб, pdf
- Проектная декларация № 77-002846, корпус 1 06.06.20231.06 мб, pdf
- Проект договора участия в долевом строительстве, корпус 1 06.06.2023739.05 кб, pdf
- Извещение о начале строительства, корпус 1 16.05.2023194.39 кб, pdf
- Градостроительный план земельного участка, корпус 1 11.04.20234.33 мб, pdf
- Схема планировочной организации земельного участка, корпус 1 11.04.202356.17 мб, pdf
- Разрешение на строительство 77-20-020769-2023, корпус 1 03.04.2023106.32 кб, pdf
- Экспертиза проектной документации, корпус 1 10.03.20231.87 мб, pdf


















