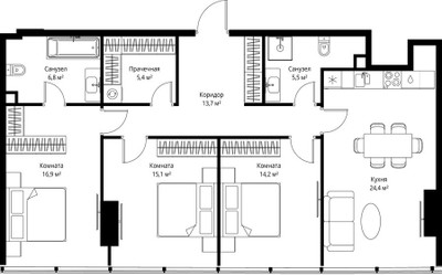
3-Комнатная квартира, 102 м², ID 735330
Обновлено Вчера, 15:46
138 730 208 ₽
1 360 100 ₽ / м2
- ЖК
- ЖК ОНЕ
- Срок сдачи
- III квартал 2027
- Застройщик
- нет данных
- Общая площадь
- 102 м2
- Жилая площадь
- 46.2 м2
- Площадь кухни
- 102 м2
- Этаж
- 78 из 94
- Отделка
- не указана
- ID
- 735330
Расположение
Описание
Трехкомнатная квартира, 102 м2 в ЖК ОНЕ от
Продается трехкомнатная квартира в новостройке ЖК ОНЕ стоимостью 138 730 208 рублей, по адресу Москва, Центральный (ЦАО), Пресненский, 1-й Красногвардейский проезд. Компания застройщик MR Group. Квартира сдается в III квартале 2027 года в 7 минутах пешком от станции метро Деловой центр. Общая площадь квартиры - 102 м². Этаж 78 из 90. ID квартиры на СтройкиРУ 735330, скажите его когда будете звонить.
Подробнее о ЖК ОНЕ
Особенности
Ход строительства
2 упоминания о ЖК ОНЕ в наших материалах




















