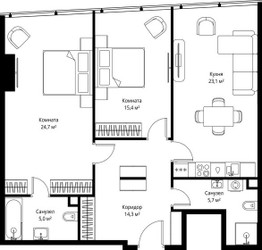
2-Комнатная квартира, 88.2 м², ID 735311
Обновлено Сегодня, 15:46
113 680 976 ₽
1 288 900 ₽ / м2
- ЖК
- ЖК ОНЕ
- Срок сдачи
- III квартал 2027
- Застройщик
- нет данных
- Общая площадь
- 88.2 м2
- Жилая площадь
- 40.1 м2
- Площадь кухни
- 88.2 м2
- Этаж
- 60 из 94
- Отделка
- не указана
- ID
- 735311
Расположение
Описание
Двухкомнатная квартира, 88.2 м2 в ЖК ОНЕ от
Продается 2-комн. квартира в новостройке ЖК ОНЕ стоимостью 113 680 976 ₽, по адресу Москва, Центральный (ЦАО), Пресненский, 1-й Красногвардейский проезд. Строится компанией MR Group. Квартира сдается в 3 квартале 2027 года в 7 минутах пешком от станции метро Деловой центр. Общая площадь квартиры - 88.2 кв. м. Этаж 60 из 90. ID квартиры на СтройкиРУ 735311, скажите его когда будете звонить.
Подробнее о ЖК ОНЕ
Особенности
Ход строительства
2 упоминания о ЖК ОНЕ в наших материалах




















