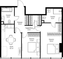
2-Комнатная квартира, 73 м², ID 735306
Обновлено Сегодня, 15:46
107 331 904 ₽
1 470 300 ₽ / м2
- ЖК
- ЖК ОНЕ
- Срок сдачи
- III квартал 2027
- Застройщик
- нет данных
- Общая площадь
- 73 м2
- Жилая площадь
- 30.9 м2
- Площадь кухни
- 73 м2
- Этаж
- 78 из 94
- Отделка
- не указана
- ID
- 735306
Расположение
Описание
Двухкомнатная квартира, 73 м2 в ЖК ОНЕ от
Продается 2-комн. квартира в новостройке ЖК ОНЕ за 107 331 904 ₽, находящаяся по адресу Москва, Центральный (ЦАО), Пресненский, 1-й Красногвардейский проезд. Строится компанией MR Group. Квартира сдается в 3 квартале 2027 года в 7 минутах пешком от станции метрополитена Деловой центр. Общая площадь квартиры - 73 кв. м. Этаж 78 из 90. ID квартиры на СтройкиРУ 735306, назовите его когда будете звонить.
Подробнее о ЖК ОНЕ
Особенности
Ход строительства
2 упоминания о ЖК ОНЕ в наших материалах




















