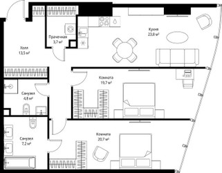
2-Комнатная квартира, 93.4 м², ID 735279
Обновлено Сегодня, 15:42
98 714 464 ₽
1 056 900 ₽ / м2
Расположение
Описание
Двухкомнатная квартира, 93.4 м2 в ЖК ОНЕ от
Продается двухкомнатная квартира в новостройке ЖК ОНЕ стоимостью 98 714 464 р, по адресу Москва, Центральный (ЦАО), Пресненский, 1-й Красногвардейский проезд. Застройщик дома MR Group. Квартира сдается в III квартале 2027 года с черновой отделкой, в 7 минутах пешком от станции метро Деловой центр. Общая площадь квартиры - 93.4 м². Этаж 50 из 90. ID квартиры на СтройкиРУ 735279, скажите его когда будете звонить.
Подробнее о ЖК ОНЕ
Особенности
Ход строительства
2 упоминания о ЖК ОНЕ в наших материалах




















