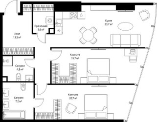
2-Комнатная квартира, 93.2 м², ID 735272
Обновлено Сегодня, 15:42
96 993 240 ₽
1 040 700 ₽ / м2
Расположение
Описание
Двухкомнатная квартира, 93.2 м2 в ЖК ОНЕ от
Продается 2-комн. квартира в новостройке ЖК ОНЕ по цене 96 993 240 руб, расположенная по адресу Москва, Центральный (ЦАО), Пресненский, 1-й Красногвардейский проезд. Застройщик MR Group. Квартира сдается в 3 квартале 2027 года с черновой отделкой, в 7 минутах пешком от метро Деловой центр. Общая площадь квартиры - 93.2 кв. м. Этаж 45 из 90. ID квартиры на СтройкиРУ 735272, сообщите его когда будете звонить.
Подробнее о ЖК ОНЕ
Особенности
Ход строительства
2 упоминания о ЖК ОНЕ в наших материалах




















