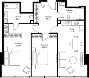
2-Комнатная квартира, 81.3 м², ID 735271
Обновлено Сегодня, 15:42
96 421 800 ₽
1 186 000 ₽ / м2
- ЖК
- ЖК ОНЕ
- Срок сдачи
- III квартал 2027
- Застройщик
- нет данных
- Общая площадь
- 81.3 м2
- Жилая площадь
- 37.7 м2
- Площадь кухни
- 81.3 м2
- Этаж
- 65 из 94
- Отделка
- не указана
- ID
- 735271
Расположение
Описание
Двухкомнатная квартира, 81.3 м2 в ЖК ОНЕ от
Продается 2-комн. квартира в новостройке ЖК ОНЕ за 96 421 800 руб, находящаяся по адресу Москва, Центральный (ЦАО), Пресненский, 1-й Красногвардейский проезд. Застройщик MR Group. Квартира сдается в 3 квартале 2027 года в 7 минутах пешком от станции метрополитена Деловой центр. Общая площадь квартиры - 81.3 кв. м. Этаж 65 из 90. ID квартиры на СтройкиРУ 735271, назовите его когда будете звонить.
Подробнее о ЖК ОНЕ
Особенности
Ход строительства
2 упоминания о ЖК ОНЕ в наших материалах




















