2-Комнатная квартира, 90.4 м², ID 735268
Обновлено Сегодня, 15:42
95 525 680 ₽
1 056 700 ₽ / м2
Расположение
Описание
Двухкомнатная квартира, 90.4 м2 в ЖК ОНЕ от
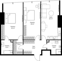
Продается двухкомнатная квартира в новостройке ЖК ОНЕ стоимостью 95 525 680 рублей, по адресу Москва, Центральный (ЦАО), Пресненский, 1-й Красногвардейский проезд. Компания застройщик MR Group. Квартира сдается в III квартале 2027 года с черновой отделкой, в 7 минутах пешком от станции метро Деловой центр. Общая площадь квартиры - 90.4 м². Этаж 47 из 90. ID квартиры на СтройкиРУ 735268, скажите его когда будете звонить.
Подробнее о ЖК ОНЕ
Особенности
Ход строительства
2 упоминания о ЖК ОНЕ в наших материалах




















