2-Комнатная квартира, 68.3 м², ID 735258
Обновлено Сегодня, 15:42
92 901 664 ₽
1 360 200 ₽ / м2
- ЖК
- ЖК ОНЕ
- Срок сдачи
- III квартал 2027
- Застройщик
- нет данных
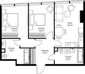
- Общая площадь
- 68.3 м2
- Жилая площадь
- 27.3 м2
- Площадь кухни
- 68.3 м2
- Этаж
- 75 из 94
- Отделка
- не указана
- ID
- 735258
Расположение
Описание
Двухкомнатная квартира, 68.3 м2 в ЖК ОНЕ от
Продается двухкомнатная квартира в новостройке ЖК ОНЕ стоимостью 92 901 664 р, по адресу Москва, Центральный (ЦАО), Пресненский, 1-й Красногвардейский проезд. Застройщик дома MR Group. Квартира сдается в III квартале 2027 года в 7 минутах пешком от станции метро Деловой центр. Общая площадь квартиры - 68.3 м². Этаж 75 из 90. ID квартиры на СтройкиРУ 735258, скажите его когда будете звонить.
Подробнее о ЖК ОНЕ
Особенности
Ход строительства
2 упоминания о ЖК ОНЕ в наших материалах




















