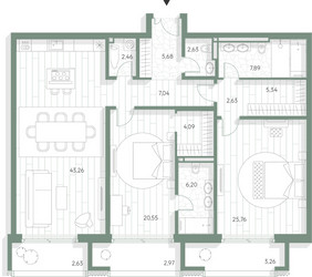
2-Комнатная квартира, 142.38 м², ID 731247
Обновлено Вчера, 18:11
355 950 016 ₽
2 500 000 ₽ / м2
- Срок сдачи
- III квартал 2026
- Застройщик
- нет данных
- Общая площадь
- 142.38 м2
- Жилая площадь
- 46.31 м2
- Площадь кухни
- 142.38 м2
- Этаж
- 2 из 7
- Отделка
- Черновая
- ID
- 731247
Расположение
Описание
Двухкомнатная квартира, 142.38 м2 в Фамильный дом Люче от
Продается двухкомнатная квартира в новостройке Фамильный дом Люче стоимостью 355 950 016 р, по адресу Москва, Центральный (ЦАО), Арбат, Крестовоздвиженский пер, д 4. Застройщик дома MR Group. Квартира сдается в III квартале 2026 года с черновой отделкой, в 3 минутах пешком от станции метро Александровский сад. Общая площадь квартиры - 142.38 м². Этаж 2 из 7. ID квартиры на СтройкиРУ 731247, скажите его когда будете звонить.




























