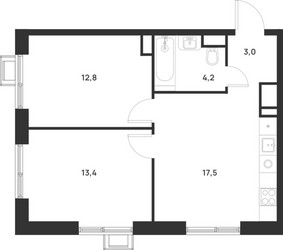
2-Комнатная квартира, 50.9 м², ID 740579
Обновлено Сегодня, 19:14
18 808 608 ₽
369 521 ₽ / м2
- Срок сдачи
- II квартал 2026
- Застройщик
- нет данных
- Общая площадь
- 50.9 м2
- Жилая площадь
- 33.4 м2
- Площадь кухни
- 50.9 м2
- Этаж
- 15 из 10
- Отделка
- не указана
- ID
- 740579
Расположение
Описание
Двухкомнатная квартира, 50.9 м2 в ЖК Форевиль от
Продается 2-комн. квартира в новостройке ЖК Форевиль стоимостью 18 808 608 ₽, по адресу Москва, Новомосковский (НАО), Сосенское, ул Разведчика Дейча. Строится компанией 3S Group. Квартира сдается в 2 квартале 2026 года в 10 минутах пешком от станции метро Корниловская. Общая площадь квартиры - 50.9 кв. м. Этаж 15 из 17. ID квартиры на СтройкиРУ 740579, скажите его когда будете звонить.

















