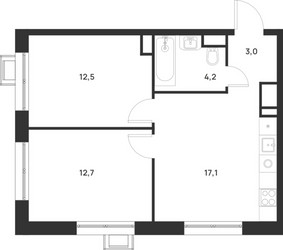
2-Комнатная квартира, 49.5 м², ID 740506
Обновлено Сегодня, 16:40
16 816 812 ₽
339 734 ₽ / м2
- Срок сдачи
- II квартал 2026
- Застройщик
- нет данных
- Общая площадь
- 49.5 м2
- Жилая площадь
- 32.4 м2
- Площадь кухни
- 49.5 м2
- Этаж
- 13 из 10
- Отделка
- не указана
- ID
- 740506
Расположение
Описание
Двухкомнатная квартира, 49.5 м2 в ЖК Форевиль от
Продается 2-комн. квартира в новостройке ЖК Форевиль по цене 16 816 812 ₽, расположенная по адресу Москва, Новомосковский (НАО), Сосенское, ул Разведчика Дейча. Строится компанией 3S Group. Квартира сдается в 2 квартале 2026 года в 10 минутах пешком от метро Корниловская. Общая площадь квартиры - 49.5 кв. м. Этаж 13 из 17. ID квартиры на СтройкиРУ 740506, сообщите его когда будете звонить.

















