1-Комнатная квартира, 35.82 м², ID 740944
Обновлено Сегодня, 06:54
20 161 502 ₽
562 856 ₽ / м2
- Срок сдачи
- III квартал 2027
- Застройщик
- нет данных
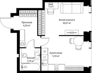
- Общая площадь
- 35.82 м2
- Жилая площадь
- 20.67 м2
- Площадь кухни
- 35.82 м2
- Этаж
- 30 из 48
- Отделка
- не указана
- ID
- 740944
Расположение
Описание
Однокомнатная квартира, 35.82 м2 в Мультиквартал СИТИДЗЕН от
Продается однокомнатная квартира в новостройке Мультиквартал СИТИДЗЕН стоимостью 20 161 502 рублей, по адресу Москва, Северо-Западный (СЗАО), Покровское-Стрешнево, ул Вишнёвая, д 7. Компания застройщик MR Group. Квартира сдается в II квартале 2029 года в 9 минутах пешком от станции метро Тушинская. Общая площадь квартиры - 35.82 м². Этаж 30 из 56. ID квартиры на СтройкиРУ 740944, скажите его когда будете звонить.





































