1-Комнатная квартира, 35.47 м², ID 740922
Обновлено Сегодня, 06:54
19 922 080 ₽
561 660 ₽ / м2
- Срок сдачи
- III квартал 2027
- Застройщик
- нет данных
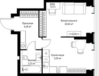
- Общая площадь
- 35.47 м2
- Жилая площадь
- 20.42 м2
- Площадь кухни
- 35.47 м2
- Этаж
- 27 из 48
- Отделка
- не указана
- ID
- 740922
Расположение
Описание
Однокомнатная квартира, 35.47 м2 в Мультиквартал СИТИДЗЕН от
Продается 1-комн. квартира в новостройке Мультиквартал СИТИДЗЕН за 19 922 080 руб, находящаяся по адресу Москва, Северо-Западный (СЗАО), Покровское-Стрешнево, ул Вишнёвая, д 7. Застройщик MR Group. Квартира сдается в 2 квартале 2029 года в 9 минутах пешком от станции метрополитена Тушинская. Общая площадь квартиры - 35.47 кв. м. Этаж 27 из 56. ID квартиры на СтройкиРУ 740922, назовите его когда будете звонить.





































