1-Комнатная квартира, 35.35 м², ID 740890
Обновлено Сегодня, 06:54
19 093 666 ₽
540 132 ₽ / м2
- Срок сдачи
- III квартал 2027
- Застройщик
- нет данных
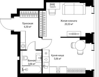
- Общая площадь
- 35.35 м2
- Жилая площадь
- 20.33 м2
- Площадь кухни
- 35.35 м2
- Этаж
- 7 из 48
- Отделка
- не указана
- ID
- 740890
Расположение
Описание
Однокомнатная квартира, 35.35 м2 в Мультиквартал СИТИДЗЕН от
Продается однокомнатная квартира в новостройке Мультиквартал СИТИДЗЕН по цене 19 093 666 рублей, расположенная по адресу Москва, Северо-Западный (СЗАО), Покровское-Стрешнево, ул Вишнёвая, д 7. Компания застройщик MR Group. Квартира сдается в II квартале 2029 года в 9 минутах пешком от метро Тушинская. Общая площадь квартиры - 35.35 м². Этаж 7 из 56. ID квартиры на СтройкиРУ 740890, сообщите его когда будете звонить.





































