3-Комнатная квартира, 82.5 м², ID 698235
Обновлено Сегодня, 03:17
42 465 640 ₽
514 735 ₽ / м2
- Срок сдачи
- II квартал 2028
- Застройщик
- нет данных
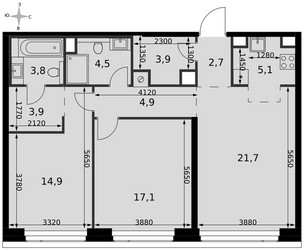
- Общая площадь
- 82.5 м2
- Жилая площадь
- 53.7 м2
- Площадь кухни
- 82.5 м2
- Этаж
- 40 из 57
- Отделка
- Черновая
- ID
- 698235
Расположение
Описание
Трехкомнатная квартира, 82.5 м2 в ЖК Амбер Сити от
Продается трехкомнатная квартира в новостройке ЖК Амбер Сити за 42 465 640 р, находящаяся по адресу Москва, Северный (САО), Хорошёвский, 3-й Хорошёвский проезд, д 3А. Застройщик дома ФСК. Квартира сдается в III квартале 2027 года с черновой отделкой, в 9 минутах пешком от станции метрополитена Беговая. Общая площадь квартиры - 82.5 м². Этаж 40 из 57. ID квартиры на СтройкиРУ 698235, назовите его когда будете звонить.
Подробнее о ЖК Амбер Сити
Особенности
Ход строительства
1 упоминание о ЖК Амбер Сити в наших материалах



















