Реклама. Застройщик

Проектная декларация на наш.дом.рф. Токен: 2SDnjewfm2q.

Поствью

Реклама. Застройщик LEGENDA Intelligent Development

Проектная декларация на наш.дом.рф. Токен: 2SDnjewfm2q.

LEGENDA Intelligent DevelopmentПоствью

Реклама. Застройщик LEGENDA Intelligent Development

Проектная декларация на наш.дом.рф. Токен: 2SDnjewfm2q.

LEGENDA Intelligent DevelopmentПоствью

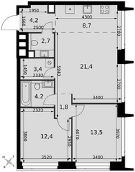
3-Комнатная квартира, 72.3 м², ID 698221

40 002 868 ₽

553 290 ₽ / м2

Срок сдачи
II квартал 2028
Застройщик
нет данных
Общая площадь
72.3 м2
Жилая площадь
47.3 м2
Площадь кухни
72.3 м2
Этаж
53 из 57
Отделка
Черновая
ID
698221

Описание

Трехкомнатная квартира, 72.3 м2 в ЖК Амбер Сити от

Продается трехкомнатная квартира в новостройке ЖК Амбер Сити стоимостью 40 002 868 рублей, по адресу Москва, Северный (САО), Хорошёвский, 3-й Хорошёвский проезд, д 3А. Компания застройщик ФСК. Квартира сдается в II квартале 2028 года с черновой отделкой, в 9 минутах пешком от станции метро Беговая. Общая площадь квартиры - 72.3 м². Этаж 53 из 57. ID квартиры на СтройкиРУ 698221, скажите его когда будете звонить.

Подробнее о ЖК Амбер Сити

«Амбур Сити» – архитектурный проект класса «премиум» от группы компаний «ФСК». Жилой комплекс расположится в западной части Москвы, в шаговой доступности – станция метро «Беговая» и железнодорожная станция «Беговая», в ближайшие годы рядом будет построена еще одна станция метро – «Звенигородская». 5 минут на автомобиле займет выезд на ТТК и Звенигородское шоссе, до делового центра «Москва-Сити» – 10 минут, до центра города и Кремля – 20 минут. 6 башен высотой от 41 до 57 этажей будут объединены общим стилобатом. Вентилируемые фасады облицуют декорированными металлическими панелями, чередование вертикальных и горизонтальных линий выделит здания на фоне окружающего ландшафта, из панорамных окон откроется вид на широкий горизонт столицы. В проекте предлагаются лоты от практичных студий до просторных пятикомнатных квартир. Представлены варианты с функциональными кухнями-гостиными с широкой зоной отдыха, раздельными санузлами, видовыми мастер-спальнями, отдельными гардеробными и постирочными помещениями. В квартирах будут высокие потолки до 3,5 м, увеличенная шумоизоляция стен и полов, увеличенные закругленные окна с двухкамерными стеклопакетами. Лоты переходят в эксплуатацию с отделкой «white box» или без отделки. Страница ЖК >>
Застройщик %_NAME_% Застройщик %_NAME_%
%_YEAR_%Год основания
99Сдано корпусов в 9 ЖК
999Строится корпусов в 99 ЖК

Жилые комплексы от

Ход строительства

Популярные жилые комплексы

    Похожие квартиры

    Трехкомнатная квартира, 72.3 м2

    40 002 868 ₽

    553 290 ₽ / м2

    Срок сдачи II кв. 2028

    Застройщик

    Количество объектов:

    Застройщик %_NAME_%
    Показать телефон

    Застройщик