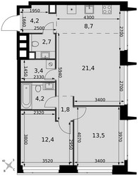
3-Комнатная квартира, 72.3 м², ID 698218
Обновлено Сегодня, 03:17
39 720 896 ₽
549 390 ₽ / м2
- Срок сдачи
- II квартал 2028
- Застройщик
- нет данных
- Общая площадь
- 72.3 м2
- Жилая площадь
- 47.3 м2
- Площадь кухни
- 72.3 м2
- Этаж
- 51 из 57
- Отделка
- Черновая
- ID
- 698218
Расположение
Описание
Трехкомнатная квартира, 72.3 м2 в ЖК Амбер Сити от
Продается 3-комн. квартира в новостройке ЖК Амбер Сити за 39 720 896 ₽, находящаяся по адресу Москва, Северный (САО), Хорошёвский, 3-й Хорошёвский проезд, д 3А. Строится компанией ФСК. Квартира сдается в 2 квартале 2028 года с черновой отделкой, в 9 минутах пешком от станции метрополитена Беговая. Общая площадь квартиры - 72.3 кв. м. Этаж 51 из 57. ID квартиры на СтройкиРУ 698218, назовите его когда будете звонить.
Подробнее о ЖК Амбер Сити
Особенности
Ход строительства
1 упоминание о ЖК Амбер Сити в наших материалах



















