1-Комнатная квартира, 45.39 м², ID 696225
Обновлено Вчера, 06:58
20 175 856 ₽
444 500 ₽ / м2
- Срок сдачи
- I квартал 2028
- Застройщик
- нет данных
- Общая площадь
- 45.39 м2
- Площадь кухни
- 45.39 м2
- Этаж
- 30 из 35
- Отделка
- Черновая
- ID
- 696225
Расположение
Описание
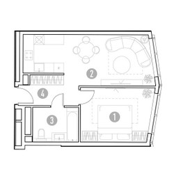
Однокомнатная квартира, 45.39 м2 в УНО Горбунова от
Продается 1-комн. квартира в новостройке УНО Горбунова стоимостью 20 175 856 ₽, по адресу Москва, Западный (ЗАО), Можайский, ул Горбунова, д 27. Строится компанией Основа, ГК. Квартира сдается в 1 квартале 2028 года с черновой отделкой, в 10 минутах на машине от станции метро Молодежная. Общая площадь квартиры - 45.39 кв. м. Этаж 30 из 35. ID квартиры на СтройкиРУ 696225, скажите его когда будете звонить.
Подробнее о УНО Горбунова
Особенности
Ход строительства
1 упоминание о УНО Горбунова в наших материалах
















