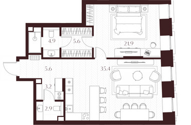
1-Комнатная квартира, 79.5 м², ID 731214
Обновлено Неделю назад
162 975 008 ₽
2 050 000 ₽ / м2
- Срок сдачи
- IV квартал 2028
- Застройщик
- нет данных
- Общая площадь
- 79.5 м2
- Жилая площадь
- 21.9 м2
- Площадь кухни
- 79.5 м2
- Этаж
- 4 из 7
- Отделка
- не указана
- ID
- 731214
Расположение
Описание
Однокомнатная квартира, 79.5 м2 в ЖК Климашкина 7/11 от
Продается 1-комн. квартира в новостройке ЖК Климашкина 7/11 за 162 975 008 руб, находящаяся по адресу Москва, Центральный (ЦАО), Пресненский, ул Климашкина, д 7/11. Застройщик MR Group. Квартира сдается в 4 квартале 2028 года в 11 минутах пешком от станции метрополитена Краснопресненская. Общая площадь квартиры - 79.5 кв. м. Этаж 4 из 7. ID квартиры на СтройкиРУ 731214, назовите его когда будете звонить.

























