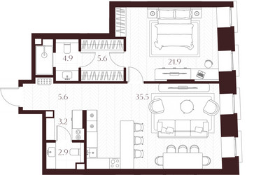
1-Комнатная квартира, 79.6 м², ID 731212
Обновлено Неделю назад
147 260 000 ₽
1 850 000 ₽ / м2
- Срок сдачи
- IV квартал 2028
- Застройщик
- нет данных
- Общая площадь
- 79.6 м2
- Жилая площадь
- 21.9 м2
- Площадь кухни
- 79.6 м2
- Этаж
- 2 из 7
- Отделка
- не указана
- ID
- 731212
Расположение
Описание
Однокомнатная квартира, 79.6 м2 в ЖК Климашкина 7/11 от
Продается однокомнатная квартира в новостройке ЖК Климашкина 7/11 за 147 260 000 р, находящаяся по адресу Москва, Центральный (ЦАО), Пресненский, ул Климашкина, д 7/11. Застройщик дома MR Group. Квартира сдается в IV квартале 2028 года в 11 минутах пешком от станции метрополитена Краснопресненская. Общая площадь квартиры - 79.6 м². Этаж 2 из 7. ID квартиры на СтройкиРУ 731212, назовите его когда будете звонить.

























